Você confiaria a estrutura da sua casa a um palpite ou a um plano que antecipa cada risco e custo?
Sou Leonardo Menezes, engenheiro civil residencial desde 2016. Trabalho no Bowl Idea, focado em arquitetura para casas, planejamento de obras e tecnologia. Meu objetivo é entregar obras seguras, bonitas e viáveis.
Utilizo modelagem 3D e renderização 3D para mostrar o projeto antes de começar. Desenvolvo projetos elétricos seguindo normas rigorosas. Além disso, faço orçamentos detalhados, controlando prazos, custos e qualidade.
Minha abordagem une experiência em obras com dados e automação. No Bowl Idea, cada etapa visa reduzir desperdício e melhorar o projeto. Conto comigo para alinhar sonho e execução com método.
Falo de forma direta, com conteúdo autoral e exemplos reais no YouTube, blog, WhatsApp e Telegram. Se precisar de ajuda, estou no (47) 99216-4246 e contato@bowlidea.com.br. Saiba mais em www.bowlidea.com.br.
Principais pontos
- Guia prático para contratar engenheiro civil residencial com foco em segurança na construção.
- Visualização antecipada por meio de modelagem 3D e renderização 3D.
- Projetos elétricos residenciais conforme normas e fiscalização técnica.
- Planejamento de obras e orçamento de obra com controle de prazos e custos.
- Conteúdo e serviços do Bowl Idea por Leonardo Menezes, com atuação em projetos e obras.
- Atendimento a proprietários, famílias e investidores que buscam estética e viabilidade.
- Contato direto para consultoria e execução de serviço de engenheiro para casa.
O que faz um engenheiro civil?
Eu começo desde o início até a entrega da casa. Meu trabalho é misturar viabilidade, estética e custo. As funções do engenheiro civil envolvem analisar o terreno e definir a estrutura. Tudo isso com foco em segurança estrutural e seguindo as normas da ABNT e do CREA.
Planejo as obras residenciais com um cronograma claro. Tenho uma equipe alinhada e metas bem definidas. O orçamento de obra é feito com detalhes, para evitar surpresas e atrasos.
Eu coordeno projetos como estrutural, elétrico e hidrossanitário. Isso garante que tudo funcione bem. Se o cliente quiser, também faço a casa preparada para energia solar e carregadores de veículos.
Na execução, aplico gestão de qualidade para evitar desperdícios. Usamos indicadores e painéis em Power BI para mostrar o progresso. Sempre verificamos a segurança estrutural e rastreamos os materiais.
Também faço conteúdo técnico para orientar proprietários e investidores. Compartilho boas práticas e decisões de projeto. Isso valoriza o imóvel, mantendo a sustentabilidade e seguindo o orçamento de obra.
| Etapa | Entregas | Ferramentas | Benefícios ao cliente |
|---|---|---|---|
| Viabilidade | Análise de terreno, estudos preliminares | Levantamentos, normas ABNT, CREA | Decisões seguras e responsabilidade técnica |
| Projeto | Estrutura, elétrica e compatibilização com arquitetura | BIM/CAD, memorial descritivo | Segurança estrutural e eficiência |
| Planejamento | Cronograma e orçamento de obra | EAP, curva S, composição de custos | Previsibilidade de prazos e gastos |
| Execução | Controle de qualidade e fiscalização | Checklists, Power BI, ensaios | Gestão de qualidade e menos retrabalho |
| Entrega | As built, manuais, garantias | Relatórios e registros | Conformidade e valor de revenda |
O que faz um arquiteto?
Eu faço o planejamento da casa, transformando necessidades em espaços agradáveis. Minhas tarefas incluem unir beleza e funcionalidade desde o início. Isso envolve cuidar da circulação, da luz natural e do conforto.
Na arquitetura de casas, crio a planta baixa com cuidado. Defino as fachadas para se encaixarem no ambiente. E escolho materiais, cores e texturas com atenção, evitando problemas na obra.
Em interiores, busco soluções que melhorem o bem-estar e o uso do espaço. O design criativo influencia a escolha de móveis e iluminação. Sempre considero o orçamento e os prazos.
Integro o projeto à natureza em casas de campo e ao ambiente urbano em lofts. Faço modelagem 3D para antecipar as decisões. Isso ajuda a alinhar as expectativas antes da obra começar.
Guio as personalizações e o reaproveitamento de materiais com responsabilidade. Quero que a arquitetura seja bela, viável e duradoura. Isso vai desde a planta baixa até os detalhes finais.

Quais são as diferenças entre arquiteto e engenheiro civil?
As diferenças começam pela liderança. O arquiteto cuida da estética e da funcionalidade. Já o engenheiro civil foca na viabilidade técnica e na segurança.
O arquiteto define o layout e as fachadas. Eu, por outro lado, me concentro nas estruturas. Nossa colaboração evita retrabalhos e economiza tempo e dinheiro.
Soluções Completas para Transformar Sua Casa com Estilo
Descubra como unir beleza, conforto e inteligência em cada metro da sua casa. Navegue pelos nossos projetos, inspire-se com ideias criativas e comece hoje mesmo a planejar o lar dos seus sonhos.

Em instalações elétricas, o arquiteto pensa na atmosfera. Eu me encaro de dimensionar os circuitos e garantir a segurança. Seguem as normas da ABNT.
O arquiteto se preocupa com a experiência do usuário. Eu planejo a obra e verifico a conformidade. Nossa colaboração garante um projeto bem estruturado.
Resultado prático: o arquiteto cuida da forma e da experiência. Eu garanto a estabilidade e a eficiência. Nossa união evita problemas e reforça a responsabilidade técnica.

Como o trabalho do arquiteto e do engenheiro se complementam?
Eu conecto ideia e obra por meio de colaboração arquiteto engenheiro. O arquiteto cria o conceito e define a linguagem do espaço. Eu avalio viabilidade técnica, desempenho e custos. Esse diálogo constante mantém estética e função alinhadas ao orçamento.
Validamos soluções com modelagem 3D e renderização 3D realistas. O cliente vê cores, texturas e luz antes de assinar a compra de materiais. Ajustes acontecem cedo, o que reduz retrabalho e incerteza na execução.
Depois, faço a compatibilização de projetos arquitetônico, estrutural e elétrico. Cruzo interferências, defino passagens de dutos e antecipo cargas. O resultado é um planejamento de obra integrado, com cronograma, orçamento e frentes de serviço claras.
Em casas modernas, de campo ou lofts, adapto sistemas e materiais. Busco conforto térmico, soluções sustentáveis possíveis e prazos realistas. Tudo fica rastreável com medições e checklists em obra.

| Etapa | Papel do arquiteto | Papel do engenheiro | Tecnologias | Benefícios ao cliente |
|---|---|---|---|---|
| Conceito | Programa, layout e linguagem do espaço | Pré-viabilidade e estimativa de custos | Briefing guiado e referências materiais | Escopo claro e metas realistas |
| Desenvolvimento | Detalhes e especificações visuais | Cálculos, desempenho e compatibilização de projetos | modelagem 3D, renderização 3D | Visualização fiel e menos mudanças tardias |
| Planejamento | Sequência de acabamentos e interfaces | planejamento de obra integrado e orçamento | WBS, cronograma físico-financeiro | Prazos e custos sob controle |
| Execução | Acompanhamento de acabamento e qualidade | Gestão de frentes, medição e controle | Checklists, apps de obra e RDO | Menos retrabalho e desperdício |
colaboração arquiteto engenheiro sustenta cada passo: do esboço à entrega. Com modelagem 3D, renderização 3D, compatibilização de projetos e planejamento de obra integrado, a execução acompanha a ideia com precisão.

Receba Ideias Exclusivas Direto no Seu E-mail!
Transforme sua casa ou espaço com dicas criativas, projetos exclusivos e acesso antecipado às nossas novidades. Comece a planejar o refúgio perfeito agora mesmo.
Não fique de fora! Cadastre-se agora e tenha acesso exclusivo às melhores ideias e tendências.
Conecte-se com o Bowl Idea:
Siga-nos nas redes sociais para mais inspirações:
Quais são as responsabilidades do engenheiro civil de obras?
Na gestão de obras residenciais, eu começo com o planejamento. Defino o cronograma detalhado, dividindo em etapas. Isso ajuda equipes e fornecedores a saber o que fazer e quando.
Minha responsabilidade inclui o controle de custos. Orço, reviso cotações e monitoro as medições. Isso mantém o orçamento equilibrado. Se necessário, ajusto o projeto para manter a qualidade e segurança.
Na obra, coordeno equipes e parceiros. Trabalho com Gerdau para aço e Votorantim Cimentos para insumos. Implemento checklists para qualidade e segurança, fazendo inspeções e relatórios objetivos.
Gerencio riscos para evitar retrabalhos e incidentes. Analiso interferências e aprovo métodos. Aplico 5S para reduzir desperdícios. Usando dashboards, acompanho o progresso e produtividade.
Para uma gestão eficiente, mantenho comunicação clara. Entrego relatórios visuais e indicadores de controle de custos. Meu foco é qualidade e segurança, garantindo um padrão técnico alto.

Engenheiro civil avalia a segurança do imóvel
Como engenheiro civil, faço avaliação de imóvel focando em segurança e conforto. Verifico fundações, lajes e vigas. Também vejo se a hidráulica, elétrica e alvenaria estão alinhadas.
Essa inspeção residencial olha prumo, nível, ancoragens e juntas. Detalhes como esses afetam o desempenho da construção.
Analiso o dimensionamento elétrico para suportar automação e energia solar. Também vejo se está protegido contra sobrecarga. Escolho materiais, faço a impermeabilização e vejo a ventilação para evitar problemas.
Com experiência e ferramentas, antecipo riscos e sugiro soluções. Quero unir segurança, eficiência energética e acabamento durável. Respeito o orçamento e o estilo do cliente.

- Checagem de integridade: fissuras, recalques, deformações.
- Compatibilidade de sistemas: elétrica, hidráulica, gás e dados.
- Detalhes construtivos: impermeabilização, juntas, ancoragens.
- Eficiência: ventilação, iluminação e isolamento térmico.
- Planos de prevenção de falhas e manutenção.
| Critério | O que eu verifico | Benefício direto |
|---|---|---|
| Segurança estrutural | Fundações, lajes, vigas, ligações e armaduras | Redução de risco e vida útil maior |
| Inspeção residencial | Prumo, nível, umidade, ventilação e ruído | Conforto e saúde no uso diário |
| Desempenho da construção | Impermeabilização, selantes, juntas e dilatação | Menos patologias e retrabalhos |
| Compatibilidade de sistemas | Quadro elétrico, SPDA, hidráulica e dados | Operação segura e preparada para tecnologia |
| Eficiência e automação | Pré-instalação para solar, carregador veicular e IoT | Economia de energia e flexibilidade futura |
| Prevenção de falhas | Plano de manutenção, materiais adequados e prazos | Menor custo total e desempenho consistente |
Parte visual da obra é um dos pontos de atenção do arquiteto
Quando falamos em estética na arquitetura, é essencial alinhar a visão do arquiteto com a viabilidade técnica e financeira. O objetivo é criar uma identidade única para a casa, sem exageros. Trabalho para encontrar soluções que sejam práticas, respeitem o clima e sejam fáceis de manter.
Em projetos de casas modernas, valorizo a simplicidade. Usamos linhas limpas, brises e vidros com proteção solar. Já em casas de campo, opto por madeira certificada, pedra e tijolo aparente. Isso ajuda a integrar a casa com o jardim e melhora a ventilação.
No design de interiores, foco em ergonomia e fluxo é crucial. Usamos modelos 3D para testar a organização. A renderização nos ajuda a escolher cores, mobiliário e iluminação. Isso evita erros que podem aumentar o orçamento.
As fachadas precisam de um equilíbrio entre proporções e materiais. Combinamos volumes, beirais e texturas para manter a harmonia. A iluminação residencial é essencial para destacar espaços, garantir segurança e criar belas cenas à noite, usando LEDs de alta qualidade.
Busco sempre manter a função da casa sem perder o conforto. Escolho revestimentos e fabricantes que sejam sustentáveis e econômicos. Cada escolha é feita pensando em sustentabilidade e orçamento.

| Elemento | Objetivo | Critérios de Projeto | Benefício Prático |
|---|---|---|---|
| Estética na arquitetura | Definir identidade da casa | Coerência formal, materiais locais, durabilidade | Valorização do imóvel e menor manutenção |
| Design de interiores | Conforto e funcionalidade | Ergonomia, fluxo, setorização, mobiliário adequado | Uso intuitivo dos espaços e menos retrabalho |
| Fachadas | Composição e presença urbana | Proporção, ritmo, beirais, brises, textura | Desempenho térmico e leitura elegante |
| Iluminação residencial | Cenas, segurança e eficiência | Temperatura de cor, IRC, dimerização, LED | Conforto visual e economia de energia |
| Décor | Unidade visual e personalidade | Paleta, texturas, peças-chave, escala | Ambientes acolhedores e fáceis de manter |
Como escolher entre arquiteto e engenheiro?
Para escolher arquiteto ou engenheiro, primeiro vejo o que preciso. Se quero pensar na casa, no layout e na estética, chamo o arquiteto. Mas, se o foco é na segurança e no orçamento, é o engenheiro quem ajuda.
Na prática, quando contratar cada um depende do projeto. O arquiteto cuida do design e da estética. Depois, o engenheiro faz o planejamento técnico e controla a qualidade.
Em serviços residenciais, é importante ter um plano. O arquiteto começa, e eu faço o planejamento técnico. Assim, tudo fica mais claro e o orçamento fica bom.
Critérios práticos
- Precisa traduzir estilo de vida em espaços? Procure o arquiteto para iniciar o projeto e obra.
- Quer estimar custos, prazos e reforços estruturais? Chame o engenheiro e alinhe quando contratar.
- Busca desempenho térmico, acústico e segurança? Integro soluções com foco em serviços residenciais.

Se duvidar entre escolher arquiteto ou engenheiro, proponho uma reunião. Assim, definimos o escopo e o cronograma. Cada etapa fica clara e as decisões são mais rápidas.
Para orçar e alinhar o calendário em serviços residenciais, faço uma análise detalhada. No Bowl Idea, o contato é pelo meu número: (47) 99216-4246.
Quem devo contratar primeiro: um arquiteto ou um engenheiro?
Primeiro, contrato o arquiteto para o anteprojeto. Depois, eu, o engenheiro, entro para a pré-obra. Nessa etapa, verifico a viabilidade, faço estimativas e oriento sobre a estrutura.
Então, faço a compatibilização entre arquitetura, estrutura e elétrica. Isso evita problemas que atrasam a obra.
Em seguida, faço modelagem 3D para ajustes finais. Isso inclui layout, iluminação e materiais. Finalizo com o projeto executivo e planejo a obra.
Se o terreno tiver problemas, como declividade ou lençol freático alto, eu entro cedo. Assim, a obra segue sem atrasos ou problemas de orçamento.

| Fase | Responsável principal | Objetivo | Entregáveis | Benefício direto |
|---|---|---|---|---|
| Conceito e anteprojeto | Arquiteto | Definir partido e layout | Estudo preliminar, plantas iniciais | Base clara para a etapa de projeto |
| Pré-obra e viabilidade | Engenheiro | Checar normas, custos e prazos | Estimativas, diretrizes técnicas | Decisões seguras antes de contratar |
| Compatibilização | Engenheiro e arquiteto | Eliminar conflitos entre disciplinas | Plantas coordenadas, memória técnica | Menos mudanças e menor risco |
| Modelagem e 3D | Arquiteto com suporte técnico | Validar soluções e materiais | Imagens 3D, revisões finas | Previsibilidade do resultado final |
| Projeto executivo | Engenheiro | Detalhar construção e sequência | Detalhes, quantitativos, cronograma | Obra organizada e orçada |
| Execução | Engenheiro | Garantir qualidade e segurança | Relatórios, controle de obra | Entrega dentro do previsto |
Preciso de um engenheiro para construir?
Para construir uma casa de qualidade, eu sempre conto com um engenheiro desde o começo. Isso garante a segurança da obra, evita retrabalhos e mantém o cronograma. Sem ele, o risco de erros estruturais ou elétricos aumenta e os custos sobem muito.
Além disso, eu faço o planejamento, orçamento e coordeno as equipes. Integro as estruturas, hidráulica e elétrica. Assim, a obra segue as normas da ABNT e do corpo de bombeiros, com documentos prontos para aprovação.
Antes de começar, mostro modelos 3D para visualizar as soluções. Isso ajuda a evitar surpresas e melhora a segurança. Também posso consultar fabricantes como Gerdau e Tigre para escolher os melhores materiais.
Se você quer saber mais sobre o mercado, explico os pontos importantes. E indico uma leitura útil em obra residencial com engenheiro. Ela fala sobre a importância de um responsável técnico registrado no CREA.
Com essa base, a obra avança no ritmo certo, com custos previsíveis e documentação em dia.

| Etapa | O que eu entrego | Benefício direto | Impacto em custos |
|---|---|---|---|
| Planejamento inicial | Briefing, estudo de viabilidade e pré-orçamento | Decisões rápidas e embasadas | Evita desperdícios de material |
| Projeto e compatibilização | Estrutural, elétrico e hidráulico integrados em 3D | Menos conflitos em obra | Reduz retrabalho e atrasos |
| Responsabilidade técnica | ART, normas ABNT e acompanhamento | Construção residencial legalizada | Minimiza multas e paralisações |
| Execução e controle | Cronograma, qualidade e segurança da obra | Previsibilidade e rastreabilidade | Cumpre orçamento acordado |
| Entrega | Checklist, manual e as built | Uso seguro e manutenção fácil | Valorização do imóvel |
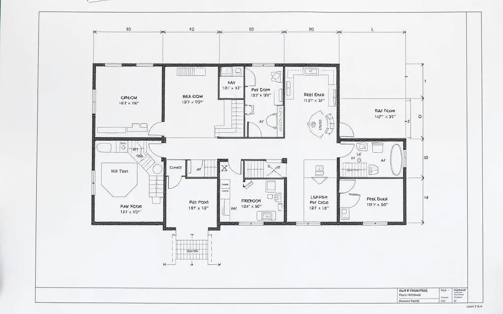
Quem monta um projeto de casa?
Um projeto de casa é a união de criatividade e técnica. Eu faço a coordenação de projetos, organizo tudo e verifico se tudo cabe no orçamento. O arquiteto define o espaço, e eu faço o resto para evitar problemas.
Trabalho com uma equipe de projeto residencial que tem arquitetos, engenheiros e fornecedores confiáveis. Chamamos designers e especialistas em decoração para melhorar a casa.
Estamos fazendo projeto arquitetônico e complementares. Isso inclui a estrutura, eletricidade, hidráulica, segurança contra incêndio e planejamento de custos. Usamos modelagem 3D para testar e validar as ideias antes de começar.
A Bowl Idea une beleza, funcionalidade e viabilidade técnica. Assim, tudo funciona bem juntos, evitando problemas na obra.

| Frente de trabalho | Responsável | Entregáveis | Benefícios para o cliente |
|---|---|---|---|
| Arquitetura | Arquiteto parceiro | Layout, fachadas, humanização | Ambientes funcionais e estética alinhada ao uso |
| Complementares | Eu, engenheiro civil | Elétrico, hidráulico, estrutural e orçamento | Segurança, eficiência e controle de custos |
| Integração | Eu, na coordenação de projetos | Compatibilização e cronograma de obra | Menos interferências e obra mais rápida |
| Experiência visual | Bowl Idea | Modelagem e renderização 3D | Decisões assertivas e compras sem desperdício |
| Acabamentos e detalhes | Designers e especialistas convidados | Cores, iluminação, marcenaria sob medida | Conforto, identidade e melhor valor percebido |
Com nossa equipe de projeto residencial e um plano claro, tudo funciona desde o começo. A minha coordenação de projetos mantém tudo em dia, preparando a obra para começar.
O engenheiro faz a planta da casa?
A planta baixa é feita pelo arquiteto. Mas, como engenheiro, eu tenho que checar tudo. Verifico se a estrutura, a eletricidade e a água vão funcionar bem.
Eu também faço modelos 3D para ver se tudo está certo. Isso inclui a forma como as pessoas vão se mover pela casa. Assim, o projeto técnico confirma se tudo vai dar certo.
Quando alguém me contrata, eu faço os projetos elétricos. Defino as cargas e os quadros. Trabalho junto com o arquiteto para que tudo fique perfeito.

| Etapa | Papel do Arquiteto | Papel do Engenheiro | Entrega-Chave |
|---|---|---|---|
| Concepção | Define a planta baixa e o partido do projeto arquitetônico | Analisa viabilidade e normas para o projeto técnico | Estudo preliminar compatível |
| Desenvolvimento | Ajusta layout, iluminação natural e linguagem | Compatibiliza estrutura e sistemas, calcula cargas | Modelagem 3D com checagem de interferências |
| Detalhamento | Especifica acabamentos e esquadrias | Dimensiona vigas, instalações e quadro elétrico | Projeto técnico executivo |
| Pré-obra | Confere coerência estética com o uso | Revisa memoriais e cronograma, define responsabilidades | Documentação para obra e orçamento |
Quanto é um projeto de casa?
O preço varia muito. Isso depende do tamanho da casa, do detalhe e do terreno. Eu considero muitas coisas, como o terreno, as leis e o acabamento.
Além disso, vejo o custo da casa em relação ao tempo e às revisões. Isso ajuda a evitar problemas no futuro.
Eu ofereço um pacote completo. Isso inclui um projeto arquitetônico feito com arquitetos, uma modelagem 3D detalhada e um projeto elétrico. Também faço um planejamento com um orçamento claro.
Isso ajuda a entender o custo antes de começar. Assim, evitamos problemas de retrabalho.
Para ter uma ideia do preço, vejo o que outros cobram. Consulto orçamentos de engenheiros e comparo com o que é possível aqui. Queremos ser transparentes e evitar surpresas.
Quer um orçamento de projeto sob medida? Fale comigo no WhatsApp/telefone (47) 99216-4246 ou pela página bowlidea.com.br/contato. Vou explicar tudo com clareza. Incluo a modelagem 3D para ajudar nas decisões.

| Entrega | Descrição | Fatores que impactam o preço | Faixas e referências |
|---|---|---|---|
| Projeto arquitetônico | Plantas, cortes, fachadas, memoriais e compatibilização inicial | Área, complexidade, normas locais, número de revisões | Define o preço projeto arquitetônico; base para o custo projeto residencial |
| Modelagem 3D e render | Modelagem 3D detalhada com imagens e vistas internas/externas | Nível de fotorrealismo, número de ambientes, ajustes de materiais | Suporte visual que reduz retrabalho e melhora o orçamento de projeto |
| Projetos complementares | Elétrico, hidráulico, estrutural, térmico e outros | Normas técnicas, interferências, coordenação entre disciplinas | Exemplo de mercado: estudo geotécnico ~450€; cálculo estrutural ~900€; especialidades ~250€ cada |
| Planejamento e custos | Cronograma, estimativas e acompanhamento de escopo | Disponibilidade de fornecedores, prazos e nível de detalhamento | Orçamento de projeto claro favorece decisões e contratos de obra |
| Fiscalização/monitoramento | Vistorias técnicas e relatórios durante a execução | Frequência de visitas, complexidade da obra, distância | Referências: monitoramento ~350€; licenças com engenharia entre 2500€ e 5000€ |
Quanto um engenheiro cobra para fazer uma casa?
Defino meus honorários de engenheiro pelo escopo e envolvimento. Considero a área construída, prazos, e visitas necessárias. Também levo em conta a necessidade de relatórios e dashboards. Isso ajuda a evitar surpresas no orçamento do projeto.
O pacote pode incluir planejamento, orçamento, projetos elétricos e acompanhamento técnico. Adiciono suporte visual em 3D para alinhar expectativas. Isso ajuda a reduzir retrabalhos e melhora a qualidade e prazo da obra.
Trabalho com contratos por etapas e entregáveis claros. Minha proposta inclui um cronograma detalhado e critérios de medição. Assim, os honorários refletem o valor gerado e a eficiência da gestão.
Quanto mais cedo o planejamento e orçamento forem feitos, menor o risco de ajustes caros. O acompanhamento técnico ajuda a corrigir desvios e antecipar compras. Isso melhora a negociação com fornecedores.
Apresento relatórios objetivos após cada etapa. Incluo fotos e checklists de conformidade. Esse método mantém os honorários alinhados com os resultados. O custo da gestão fica transparente, e as decisões são rápidas e seguras.
| Componente | O que inclui | Impacto no custo | Benefício direto |
|---|---|---|---|
| Planejamento e orçamento | Estimativas, cronograma, curva de caixa | Médio | Menos desperdício e compras no timing certo |
| Acompanhamento técnico | Visitas, relatórios, checklists | Variável por frequência | Correção de desvios e padrão de qualidade |
| Compatibilização | Estrutural, elétrico e hidráulico integrados | Médio | Evita interferências e retrabalhos |
| Gestão de compras | Cotações, prazos, logística | Baixo a médio | Preço melhor e obra sem paralisação |
Em resumo, um contrato claro, metas mensuráveis e acompanhamento técnico contínuo fazem a diferença. Isso garante previsibilidade de prazo e custo desde o início.
Quanto custa contratar um engenheiro?
O preço para contratar um engenheiro muda de acordo com o trabalho necessário. Em casa, posso ajudar desde o começo até o fim do projeto. Ofereço propostas claras, prazos certos e relatórios regulares para que tudo fique claro.
Ofereço opções modulares que se adaptam ao seu orçamento de serviços de engenharia:
- Diagnóstico e viabilidade: visita técnica, análise de riscos e estimativa inicial.
- Pacote projeto + 3D: projeto técnico, compatibilização e visualização do ambiente.
- Pacote completo: planejamento, cronograma físico-financeiro e acompanhamento em obra.
Em consultoria residencial, o preço varia com o tamanho do trabalho e a urgência. Ajusto o escopo para que você saiba exatamente o que está incluído. Atualizo sempre os processos e conteúdo técnico.
Para um orçamento de serviços de engenharia alinhado ao seu caso, entre em contato pelo (47) 99216-4246. Assim definimos o nível de detalhamento, a frequência das visitas e o formato dos relatórios. Isso garante que o custo seja previsível.

Quanto custa para construir uma casa de 100m²?
O custo de construir uma casa de 100m² muda muito. Isso depende do acabamento, do tipo de construção, da região e da logística. Eu começo com um plano claro com o arquiteto. Depois, definimos a estética e a funcionalidade antes de fazer o orçamento.
Usar modelagem 3D ajuda a saber exatamente o que vai precisar. Isso torna o planejamento de custos mais preciso. Com isso, as compras seguem um plano financeiro que se alinha com a obra.
Escolho materiais e acabamentos pensando no orçamento e na durabilidade. Avalio a logística, prazos de entrega e índices locais. Isso ajuda a manter o custo da construção alinhado com o local, evitando surpresas.
Para ser transparente, faço um controle de materiais, cotações e compras. O planejamento de custos é sempre atualizado. Fazemos simulações para diferentes padrões, mostrando o impacto em desempenho, manutenção e valor final.
Esse processo une arquitetura, engenharia e mercado. O orçamento de obra deixa de ser uma estimativa. Torna-se uma base para tomar decisões, desde a estrutura até os materiais e acabamentos.
Resultado prático: previsibilidade, rastreabilidade e obra sem sobressaltos de custo.

| Componente | Escopo | Impacto no Custo | Decisões-Chave |
|---|---|---|---|
| Arquitetura | Projeto definido com layout e detalhamento | Alto, orienta quantidades | Implantação, ventilação, iluminação |
| Estrutura | Convencional, metálica ou pré-moldada | Médio a alto | Prazo, mão de obra local, logística |
| Materiais e acabamentos | Revestimentos, louças, metais, esquadrias | Alto, grande variabilidade | Desempenho, manutenção, estética |
| Instalações | Elétrica, hidráulica, climatização | Médio | Eficiência, compatibilização em 3D |
| Logística | Transporte, armazenamento, acesso | Médio | Prazo de entrega, perdas, sequência |
| Gestão | Cronograma físico-financeiro e compras | Reduz desvios | Contratações por pacote e medição |
Com esse mapa, o custo de construir uma casa de 100m² fica claro antes de começar. Eu foco em pacotes de serviço bem definidos. E faço revisões periódicas do planejamento de custos, mantendo o orçamento alinhado com o progresso real.
Quando o cliente compara opções, mostro o impacto direto nos materiais e acabamentos. E também no fluxo de caixa. Assim, a estética desejada fica viável, sem comprometer prazos e qualidade.
É possível construir uma casa com 50 mil reais?
Com 50 mil reais, foco é em construção econômica e espaço reduzido. Eu escolho o essencial: uma fundação segura, estrutura simples e cobertura eficiente. O objetivo é fazer uma casa viável sem comprometer segurança ou durabilidade.
Busco economizar comprando em lojas como Leroy Merlin, Telhanorte e C&C. Procuro descontos e itens em promoção. Acabamentos simples, piso cimentado ou cerâmica e pintura acrílica são soluções acessíveis.
Utilizo modelagem 3D para calcular materiais e prever perdas. Isso me ajuda a encontrar maneiras de cortar custos. Planejo as passagens elétricas e hidráulicas e faço um layout para crescer futuramente.
Em espaços pequenos, faço pequenos reparos e instalo luminárias. A parte mais importante, como estrutura e eletricidade, é feita por profissionais. Isso mantém a qualidade da obra.
Para economizar, escolho uma planta compacta e um telhado simples. Também uso ventilação cruzada e iluminação natural. Essas escolhas ajudam a reduzir custos e tornam a casa mais fácil de manter.
Qual o valor de um arquiteto?
Quando penso no preço de um arquiteto para uma casa, vejo três coisas importantes. São elas: a área da casa, a complexidade do projeto e o detalhe dos designs. O preço varia de acordo com as etapas do projeto, como o estudo inicial e o projeto executivo.
Outros fatores também influenciam o custo. Isso inclui o projeto arquitetônico, a compatibilidade com a estrutura e os detalhes dos interiores. Cada um desses pontos requer atenção especial, especialmente na escolha dos materiais e na marcenaria.
No Bowl Idea, trabalhamos com arquitetos que se encaixam no que você deseja. Seja para casas modernas, de campo, lofts urbanos ou interiores personalizados. Usamos modelagem 3D para testar a estética e funcionalidade antes de começar a construir.
Isso ajuda a evitar retrabalhos e antecipa possíveis problemas. Também torna o orçamento mais claro. Assim, o projeto avança com segurança, dentro do prazo e sem surpresas.
Se você quer ajustar o orçamento do arquiteto, temos soluções. Oferecemos pacotes por etapas e níveis de entrega. Para mais informações, ligue para (47) 99216-4246 ou visite bowlidea.com.br/contato. Vamos dar uma proposta clara e detalhada, com prazo definido.
Perguntas Frequentes Sobre Serviço de Engenheiro para Casa
Como funciona meu Serviço de Engenheiro para Casa no Bowl Idea?
Eu faço todo o processo, desde a ideia até a entrega final. Trabalho com segurança, beleza e economia em mente. Trabalho com arquitetos para criar o projeto arquitetônico. Realizo os projetos elétricos seguindo as normas. Faço modelagem 3D para visualizar o projeto. Planejo e orço a obra e gerencio a execução. Meu foco é valorizar o imóvel, melhorar o desempenho e controlar prazos e custos.
O que faz um engenheiro civil na prática da obra residencial?
Eu avalio se a obra é viável e dimensiono os sistemas. Verifico se os projetos estão alinhados e faço o planejamento e orçamento. Coordeno as equipes e os fornecedores. Garanto que tudo esteja conforme as normas. Usamos tecnologia para controlar a qualidade, segurança e eficiência. Isso inclui o uso do Power BI para transparência financeira.
O que faz um arquiteto no projeto da casa?
O arquiteto define o conceito, layout e fachadas. Ele cuida da ergonomia, iluminação e escolha de materiais. No Bowl Idea, trabalho com arquitetos para criar um projeto que combine estética e funcionalidade. Usamos 3D para validar as escolhas antes da obra. Isso evita erros e garante que o projeto seja perfeito.
Quais são as diferenças entre arquiteto e engenheiro civil?
O arquiteto se concentra na experiência do usuário, na estética e na funcionalidade. Eu, como engenheiro, foco na viabilidade, segurança, planejamento e execução. Ele define o projeto; eu garanto que ele seja viável e eficiente.
Como o trabalho do arquiteto e do engenheiro se complementam?
Trabalhamos juntos desde o início. O arquiteto cria o conceito e os interiores. Eu analiso os custos e a viabilidade técnica. Planejo a obra e faço os projetos elétricos. Usamos 3D para alinhar as expectativas e evitar retrabalhos.
Quais são as responsabilidades do engenheiro civil de obras?
Eu planejo o cronograma, orçamento e compras. Contrato e coordeno as equipes. Gerencio os riscos e controlo a qualidade. Realizo medições e cumpro os prazos. Documento as decisões e mantenho relatórios. Busco reduzir desperdícios e custos.
Por que a parte visual da obra exige atenção do arquiteto?
A estética define o valor da casa. Trabalhamos com paletas, texturas e mobiliário. Usamos 3D para evitar erros. Em fachadas, buscamos harmonia com o contexto. Isso melhora a experiência do usuário.
Como escolher entre arquiteto e engenheiro para começar?
Se você quer focar na estética, comece com o arquiteto. Se é viabilidade e custos, comece comigo. Normalmente, sugiro começar com o arquiteto e depois com o engenheiro.
Quem devo contratar primeiro: um arquiteto ou um engenheiro?
Comece com o arquiteto para o estudo preliminar. Depois, eu faço a validação de custos e técnica. Se houver restrições no terreno, eu entro desde o início.
Preciso de um engenheiro para construir?
Sim, por segurança e conformidade. Eu faço o planejamento e orçamento. Trabalho com projetos elétricos e coordeno as equipes. Garanto qualidade e controle de prazos. Isso reduz riscos e retrabalhos.
Quem monta um projeto de casa completo?
O arquiteto cria o projeto arquitetônico. Eu faço os projetos elétricos e planejo a obra. Também coordeno equipes quando necessário.
O engenheiro faz a planta da casa?
A planta é parte do projeto arquitetônico. Eu valido as soluções técnicas. Faço o projeto elétrico e uso 3D para visualizar o projeto.
Quanto é um projeto de casa no meu fluxo?
O valor varia conforme a escala e complexidade. No Bowl Idea, ofereço arquitetura, 3D e projeto elétrico. Faço um orçamento transparente e um cronograma claro. Para uma proposta, entre em contato: (47) 99216-4246 ou contato@bowlidea.com.br.
Quanto um engenheiro cobra para fazer uma casa?
Meus honorários dependem do escopo, metragem e prazo. Trabalho em etapas com entregáveis claros. Ofereço suporte visual com 3D e dashboards. Meu objetivo é transformar os honorários em economia real.
Quanto custa contratar um engenheiro para obra residencial?
Ofereço pacotes modulares. Você pode escolher entre consultoria, projeto com 3D ou pacote completo. O valor varia conforme a complexidade e prazo. Para um orçamento personalizado, entre em contato pelo WhatsApp ou e-mail.
Quanto custa para construir uma casa de 100m²?
É possível construir uma casa com 50 mil reais?
Sim, mas só em casos simples. É necessário ter uma área pequena e soluções acessíveis. Eu priorizo segurança e planejo a obra em fases. Usamos 3D para economizar sem comprometer a estrutura e elétrica.
Qual o valor de um arquiteto integrado ao meu processo?
O valor varia conforme a área e complexidade. No Bowl Idea, integro o trabalho do arquiteto ao meu planejamento e projeto elétrico. Isso reduz retrabalhos e acelera as decisões. Para valores e agenda, visite o site www.bowlidea.com.br/contato.
Vocês atendem casas modernas, casas de campo e lofts urbanos?
Sim. Ajusto os materiais e sistemas para cada tipo de casa. Trabalho para garantir conforto, sustentabilidade e respeitar o orçamento. Usamos 3D para antecipar escolhas de cores, texturas e iluminação. Isso melhora a experiência do usuário.
Como a renderização 3D ajuda a economizar?
O 3D realista evita erros de compra e retrabalhos. Permite visualizar acabamentos, mobiliário e iluminação antes da obra. Isso melhora o planejamento e otimiza o cronograma.
Vocês fazem projeto elétrico residencial conforme normas?
Sim. Fazemos o projeto elétrico com foco em segurança e eficiência. Dimensionamos os circuitos e proteções conforme normas técnicas. Podemos prever infraestrutura para energia solar e carregadores veiculares quando fizer sentido.
Como acompanho prazos e custos durante a obra?
Usamos cronograma, medições e relatórios para controlar prazo, custo e qualidade. Quando aplicável, disponibilizamos dashboards com Power BI para transparência. A comunicação é clara e frequente.
Como solicitar orçamento e portfólio?
Envie mensagem para (47) 99216-4246 ou e-mail para contato@bowlidea.com.br. No site www.bowlidea.com.br, você encontra conteúdo no blog, vídeos no YouTube e canais no WhatsApp e Telegram. Eu retorno com um briefing, escopo e proposta personalizada.

Leonardo é engenheiro civil desde 2016 e criador do Bowl Idea, um projeto que une engenharia, criatividade e inspiração para transformar espaços em verdadeiros refúgios. Apaixonado por arquitetura funcional, minimalismo e elementos naturais, compartilha ideias acessíveis para quem busca praticidade com estilo. Atua também com soluções digitais e gestão de projetos, integrando inovação e experiência técnica em cada proposta.
Conheça nossos serviços para transformar sua casa




