Você já pensou na importância de um projeto de eletricidade para sua casa? Muitas pessoas acham que qualquer instalação serve. Mas isso pode ser perigoso, colocando em risco a segurança elétrica e a eficiência da energia.
Neste guia, vamos mostrar como fazer um projeto de eletricidade seguro e eficiente. A Bowl Idea, liderada por Leonardo Menezes, vai te guiar em cada passo. Assim, você terá uma instalação que atende às suas necessidades e às normas técnicas.
Principais Aprendizados
- Compreensão do que é um projeto de eletricidade e sua importância.
- Identificação dos principais componentes de instalações elétricas.
- Normas e regulamentações essenciais para segurança elétrica.
- Etapas de elaboração de um projeto elétrico eficaz.
- Erros comuns a evitar ao planejar instalações elétricas.
O que é um projeto de eletricidade
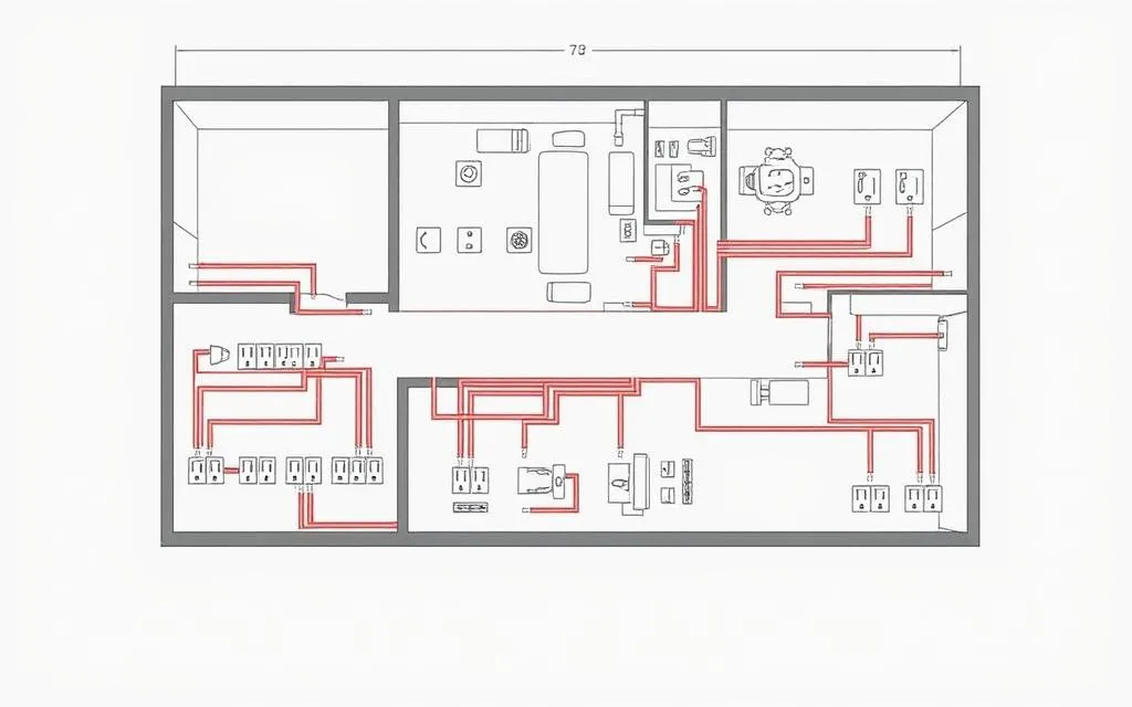
Um projeto de eletricidade é um documento técnico crucial para instalações elétricas residenciais. Ele descreve as características e requisitos das instalações elétricas de uma casa. É um guia completo.
Este documento traz representações gráficas para facilitar a visualização. Mostra a disposição de pontos de luz, tomadas, circuitos elétricos e equipamentos de proteção. Cada parte é planejada com cuidado, atendendo às necessidades e preferências dos moradores.
Para garantir segurança e funcionalidade, o projeto segue as diretrizes da NBR 5410. Essa regulamentação brasileira é específica para o sistema elétrico em edificações. Assim, o projeto elétrico melhora a eficiência energética e previne riscos.

Um projeto bem feito influencia na escolha de materiais e equipamentos. Isso afeta diretamente a qualidade e durabilidade das instalações elétricas residenciais. Por isso, é essencial cuidar na elaboração desse documento para um ambiente seguro e funcional.
Importância do projeto elétrico na construção
O projeto elétrico é muito importante na construção de casas. Ele garante a segurança e a eficiência das instalações. Um bom projeto evita problemas como curto-circuitos e incêndios.
Isso protege não só os equipamentos, mas também as pessoas que moram lá. Um projeto bem feito ajuda a evitar riscos.
Um projeto elétrico eficiente também ajuda a economizar energia. Com o uso correto dos circuitos e dos equipamentos, o consumo de eletricidade diminui. Isso faz com que as contas mensais sejam mais baixas.
É muito importante seguir as normas técnicas como a NBR 5410 e a NR-10. Essas normas asseguram que as instalações sejam seguras. Elas protegem tanto os usuários quanto os profissionais que fazem a instalação.

Principais componentes do projeto de eletricidade
Um projeto de eletricidade precisa de vários componentes para ser seguro e funcional. Os circuitos de iluminação e as tomadas são essenciais para o dia a dia. Escolher bem esses elementos melhora a eficiência energética e a conveniência.
Os circuitos devem ser planejados com base no uso e no número de aparelhos. É crucial saber quantas tomadas são necessárias, tanto para uso geral quanto específico. Assim, você evita problemas de falta de energia.
Os disjuntores são chave para proteger os circuitos contra sobrecargas e curtos-circuitos. Um bom projeto elétrico inclui disjuntores adequados para cada circuito. Isso aumenta a segurança. Na iluminação, pense em diferentes tipos de lâmpadas para o melhor ambiente.

| Componente | Função |
|---|---|
| Circuitos de Iluminação | Distribuir energia para as luminárias e garantir iluminação adequada |
| Tomadas de Uso Geral (TUGs) | Permitem a conexão de dispositivos comuns de forma prática |
| Tomadas de Uso Específico (TUEs) | Destinadas a equipamentos que exigem uma demanda maior de energia |
| Disjuntores | Protegem os circuitos contra falhas elétricas |
Considerando todos esses componentes, seu projeto elétrico vai atender às necessidades da sua casa. Isso traz conforto e segurança para todos os espaços.
Normas e regulamentações para instalações elétricas
As normas técnicas são essenciais para projetos elétricos. Elas garantem que as instalações sejam seguras e funcionem bem. A NBR 5410 é uma delas, e é muito importante.
Essa norma cuida de coisas importantes. Por exemplo, como dimensionar corretamente e proteger contra sobrecargas e choques elétricos.
Soluções Completas para Transformar Sua Casa com Estilo
Descubra como unir beleza, conforto e inteligência em cada metro da sua casa. Navegue pelos nossos projetos, inspire-se com ideias criativas e comece hoje mesmo a planejar o lar dos seus sonhos.

A NR-10 também é muito importante. Ela foca na segurança da eletricidade. É crucial que todos os profissionais sigam essa norma.
Isso ajuda a reduzir riscos e a melhorar a segurança no trabalho. Seguir as normas técnicas e regulamentações evita problemas legais. E também protege melhor os usuários.
Projeto de eletricidade para casa
Para planejar a eletricidade da sua casa, é essencial cuidar com o dimensionamento de carga. Isso garante que a instalação elétrica atenda às necessidades do imóvel. Assim, evita-se sobrecargas e assegura-se a segurança necessária.
Dimensionamento da carga elétrica
O dimensionamento da carga envolve somar as cargas de iluminação, tomadas e equipamentos elétricos. É crucial para evitar falhas na instalação. Além disso, é importante considerar o fator de potência.
Para garantir que cada circuito esteja bem dimensionado, é necessário fazer um cálculo detalhado. Isso inclui as potências necessárias para TUGs e TUEs.
Escolha de equipamentos elétricos
Na hora de escolher equipamentos elétricos, a eficiência energética deve ser prioridade. Optar por dispositivos eficientes, como lâmpadas LED e eletrodomésticos com selo de eficiência, economiza energia a longo prazo. Esses equipamentos também duram mais nas instalações.
Investir em qualidade e eficiência é crucial ao planejar a eletricidade da sua casa. Isso não só economiza energia, mas também melhora a durabilidade das instalações.

Etapas para elaboração do projeto elétrico
Para fazer um projeto elétrico, é preciso seguir várias etapas importantes. Primeiro, é necessário fazer um levantamento de dados e entender as necessidades. Depois, vem a definição do layout elétrico. Esses passos são essenciais para que o projeto atenda às suas necessidades e expectativas.
Levantamento de dados e necessidades
No início, analise o espaço onde a instalação será feita. Pense nos equipamentos que serão usados e como você vai usar cada ambiente. Também é importante olhar a estrutura existente e as necessidades de cada cômodo, como a quantidade de tomadas e pontos de luz.

Receba Ideias Exclusivas Direto no Seu E-mail!
Transforme sua casa ou espaço com dicas criativas, projetos exclusivos e acesso antecipado às nossas novidades. Comece a planejar o refúgio perfeito agora mesmo.
Não fique de fora! Cadastre-se agora e tenha acesso exclusivo às melhores ideias e tendências.
Conecte-se com o Bowl Idea:
Siga-nos nas redes sociais para mais inspirações:
Definição do layout elétrico
Depois de analisar os dados, vem a hora de definir o layout elétrico. Nesta etapa, você organiza as tomadas, interruptores e pontos de luz. É importante pensar na funcionalidade e na estética dos ambientes. Um layout bem pensado melhora a experiência dos usuários diariamente.
| Etapa | Descrição |
|---|---|
| Levantamento de dados | Análise das necessidades e do espaço disponível, verificando equipamentos e uso desejado. |
| Definição do layout elétrico | Organização da disposição de tomadas, interruptores e iluminação, visando funcionalidade e estética. |

Distribuição de circuitos e pontos de energia
É essencial ter uma boa distribuição de circuitos elétricos e pontos de energia em casa. Isso garante eficiência e segurança. Seguir normas técnicas, como a NBR 5410, é crucial. Elas ajudam a determinar a quantidade e o lugar dos circuitos, evitando sobrecargas.
É importante ter circuitos específicos para iluminação e para uso geral e específico. Assim, cada área da casa atende suas necessidades, sem interrupções. A disposição dos pontos de energia influencia muito a funcionalidade e conveniência do espaço. Isso cria um ambiente mais agradável e seguro.

Importância da manutenção com o projeto elétrico
Manter as instalações elétricas em dia é crucial para a segurança e eficiência. Sem revisões regulares, riscos como curtos-circuitos e incêndios podem surgir. Fazer manutenções preventivas evita acidentes e aumenta a vida útil dos equipamentos.
As revisões periódicas são essenciais. Elas verificam fiações, interruptores e tomadas, que podem se desgastar com o tempo. Manter um registro de manutenções ajuda a identificar problemas e fazer atualizações. Isso mantém um ambiente seguro e funcional para todos.

| Benefícios da Manutenção | Consequências da Negligência |
|---|---|
| Aumenta a segurança elétrica | Risco de incêndios |
| Melhora a eficiência energética | Aumento das contas de energia |
| Extensão da vida útil dos equipamentos | Substituições frequentes |
| Identificação precoce de falhas | Descargas elétricas inesperadas |
Tipologia de circuitos elétricos
A tipologia dos circuitos elétricos é muito importante para a segurança em casa. Ela ajuda a organizar e manter a instalação elétrica. Existem três tipos principais: circuitos de iluminação, circuitos de tomadas e circuitos específicos.
Circuitos de iluminação
Os circuitos de iluminação dão energia para as luzes. É essencial pensar no tamanho do espaço para escolher o circuito certo. Assim, cada área fica bem iluminada. Usar interruptores e dimmers melhora a eficiência e a flexibilidade.
Circuitos de tomadas
Os circuitos de tomadas são essenciais para aparelhos elétricos. Devem ser bem distribuídos para evitar sobrecargas. Isso mantém a segurança elétrica em casa.
Circuitos de uso específico
Os circuitos específicos são para aparelhos que usam mais energia, como chuveiros e ar-condicionados. É crucial que sejam projetados corretamente. Assim, a energia é fornecida de forma segura e contínua.

Economizando energia com o projeto elétrico
Reduzir o consumo de energia é essencial para economizar e cuidar do planeta. Usar tecnologias eficientes é crucial no planejamento elétrico de uma casa. Elas podem mudar sua vida diária.
Tecnologias de iluminação eficiente
As lâmpadas LED são ótimas para economizar energia. Elas oferecem luz de qualidade e usam muito menos energia. Além disso, duram muito mais que as lâmpadas tradicionais.
Adicionar essas lâmpadas ao seu projeto elétrico faz sua casa economizar mais.
Sistemas de automação residencial
A automação residencial melhora o uso de energia em casa. Com sistemas de automação, você pode controlar luzes e aparelhos de forma inteligente. Por exemplo, sensores de presença podem acender ou apagar a luz quando alguém entra ou sai.
Essa tecnologia não só economiza energia, mas também ajuda a proteger o meio ambiente.

Erros comuns em projetos elétricos e como evitá-los
Desenvolver projetos elétricos exige muita atenção. Erros comuns podem ser perigosos. Um erro comum é o subdimensionamento de circuitos, que pode causar sobrecargas.
É crucial dimensionar corretamente cada circuito. Assim, evitamos problemas no futuro.
Outro erro comum é não usar dispositivos de proteção adequados. Disjuntores e dispositivos diferenciais residuais (DR) são essenciais para evitar choques elétricos e incêndios. Usar materiais de qualidade inferior também é um erro. Isso pode comprometer a durabilidade e segurança dos sistemas elétricos.
Para evitar erros, siga as regulamentações estabelecidas. É importante consultar profissionais qualificados para planejar e executar a instalação. Para mais informações, visite este link.

Tendências e inovações em projetos elétricos
As tendências em projetos elétricos mudam rápido. Isso acontece porque queremos mais eficiência energética e novas tecnologias. A Internet das Coisas (IoT) ajuda a controlar tudo de longe. Isso faz o uso da energia ser mais fácil e barato.
Usar energia renovável, como solar e eólica, está se tornando mais comum. Tecnologias de armazenamento de energia estão melhorando. Elas ajudam a usar melhor o que temos, reduzindo o uso de fontes não renováveis. Isso mostra o foco na sustentabilidade em projetos elétricos atuais.
A automação residencial é muito importante. Ela permite controlar a energia em tempo real. Isso ajuda a cuidar do meio ambiente e a economizar. As inovações em monitoramento dão dados para tomar melhores decisões sobre energia.

Vantagens de contratar um profissional qualificado
Contratar profissionais qualificados para seu projeto de eletricidade traz muitos benefícios. Eles sabem como seguir todas as regulamentações e normas de segurança. Isso diminui muito o risco de problemas futuros.
Um projeto elétrico bem feito não só é seguro, mas também ajuda a economizar energia. Isso traz economia a longo prazo. Os profissionais qualificados ajudam a escolher os melhores equipamentos elétricos. Eles fazem a instalação mais eficiente e segura.

Exemplos práticos de projeto de eletricidade
Os exemplos práticos de projetos elétricos são muito úteis. Eles ajudam a fazer instalações seguras e eficientes. Ao estudar casos reais, você aprende a seguir as normas e as melhores práticas.
Um projeto elétrico bom vai além do layout. Ele deve atender às necessidades de cada casa. Ao analisar estudos de caso, você vê como resolver problemas em diferentes locais. Isso mostra a importância da segurança em qualquer projeto.

Confiança em projetos elétricos vem de analisar estudos de caso. Isso inclui escolher equipamentos e dimensionar cargas elétricas. Assim, você evita erros que podem prejudicar a segurança e eficiência. Esses exemplos são essenciais para quem quer entender mais sobre eletricidade em casas.
Responsabilidade e segurança nas instalações elétricas
É muito importante ter responsabilidade ao fazer instalações elétricas. A segurança elétrica em nossos lares e no trabalho é essencial. Isso inclui seguir as regras e usar materiais de boa qualidade.
Prevenir acidentes exige cuidado o tempo todo. É crucial fazer manutenções e inspeções em sistemas elétricos. Assim, podemos evitar acidentes sérios, que podem prejudicar pessoas e bens.
É fundamental que todos saibam sobre segurança elétrica. Profissionais e usuários devem trabalhar juntos para manter a segurança. Assim, todos ajudam a criar um ambiente seguro.

| Aspectos | Importância |
|---|---|
| Normas técnicas | Asseguram que as instalações cumpram requisitos de segurança. |
| Materiais adequados | Evita falhas e riscos que podem levar a acidentes. |
| Manutenção regular | Identifica problemas antes que se tornem perigosos. |
| Conscientização | Promove um ambiente de segurança e prevenção. |
Conclusão
A importância do projeto elétrico é grande. Ele garante segurança e eficiência em suas instalações. Um projeto bem feito atende às necessidades do espaço e evita riscos elétricos.
É crucial seguir as melhores práticas de engenharia elétrica. Respeitar as normas técnicas e escolher profissionais qualificados são passos importantes. Eles garantem um ambiente seguro e funcional.
Este guia é uma base para um projeto elétrico de qualidade. A segurança, eficiência e qualidade de vida dependem de um trabalho profissional. Portanto, um projeto bem estruturado é essencial.
Perguntas Frequentes Sobre Projeto de Eletricidade para Casa: Guia Completo
O que é um projeto de eletricidade?
Um projeto de eletricidade é um documento que mostra como as instalações elétricas de uma casa. Ele inclui desenhos e informações sobre pontos de luz, tomadas e circuitos.
Qual a importância de um projeto elétrico na construção?
Um projeto elétrico é crucial para a segurança e eficiência das instalações. Ele previne riscos como curto-circuitos e danos a equipamentos. Além disso, ajuda a economizar energia e reduzir custos.
Quais são os principais componentes do projeto de eletricidade?
Os principais componentes são circuitos de iluminação, tomadas e disjuntores. Eles protegem contra sobrecargas e curtos-circuitos.
Quais são as normas e regulamentações relevantes para instalações elétricas?
Normas como a NBR 5410 e a NR-10 são essenciais. Elas garantem que as instalações sejam seguras e legais.
Como é feito o dimensionamento da carga elétrica?
O dimensionamento envolve calcular as cargas de iluminação e tomadas. Isso ajuda a garantir que a instalação atenda às necessidades do imóvel.
Quais etapas devem ser seguidas para elaborar um projeto elétrico?
Primeiro, é preciso levantar dados e necessidades. Depois, define-se o layout elétrico e distribui-se os circuitos e pontos de energia.
Como garantir a manutenção adequada no projeto elétrico?
A manutenção deve incluir revisões periódicas. Isso ajuda a identificar e corrigir problemas, mantendo a segurança e durabilidade do sistema.
Quais são os benefícios de usar tecnologias de iluminação eficiente?
Tecnologias como lâmpadas LED reduzem o consumo de energia. Elas promovem um estilo de vida sustentável e economia nas contas de luz.
Quais erros comuns devem ser evitados em projetos elétricos?
Erros comuns incluem subdimensionamento de circuitos e falta de dispositivos de proteção. É essencial consultar profissionais qualificados para evitar esses erros.
Quais são as tendências atuais em projetos elétricos?
Por que é importante contratar um profissional qualificado para o projeto elétrico?
Profissionais qualificados têm o conhecimento necessário para seguir as normas. Eles garantem a eficiência e segurança do sistema elétrico.
Onde posso encontrar exemplos práticos de projetos de eletricidade?
Estudos de caso são ótimas fontes. Eles mostram a aplicação de teorias e normas em projetos elétricos.
Como a responsabilidade nas instalações elétricas pode prevenir acidentes?
A responsabilidade inclui seguir as normas técnicas e escolher materiais adequados. Manutenções periódicas também são essenciais para a segurança.

Leonardo é engenheiro civil desde 2016 e criador do Bowl Idea, um projeto que une engenharia, criatividade e inspiração para transformar espaços em verdadeiros refúgios. Apaixonado por arquitetura funcional, minimalismo e elementos naturais, compartilha ideias acessíveis para quem busca praticidade com estilo. Atua também com soluções digitais e gestão de projetos, integrando inovação e experiência técnica em cada proposta.
Conheça nossos serviços para transformar sua casa




