Você já pensou por que muitos projetos de casas não atingem o orçamento? Entender a arquitetura projetos de casas e os desafios da construção de casas é essencial. Isso garante um lar dos sonhos sem surpresas ruins. Vamos ver a teoria do planejamento arquitetônico e práticas que dão certo.
Também vamos falar sobre os custos de construção que você deve saber. A Bowl Idea, fundada por Leonardo Menezes, pode ajudar muito nesse caminho.
Principais Pontos
- Compreensão das etapas do projeto arquitetônico.
- Fatores que influenciam os custos de construção.
- Importância do planejamento na construção de casas.
- Soluções personalizadas oferecidas pela Bowl Idea.
- Como evitar surpresas financeiras ao construir.
O que é um projeto arquitetônico residencial?
Um projeto arquitetônico residencial é um documento técnico importante. Ele ajuda no planejamento de casas. Este projeto não só se concentra na beleza, mas também em funcionalidade e segurança.
Para criar um projeto arquitetônico, são feitas plantas baixas, cortes e elevações. Isso garante que tudo esteja de acordo com as leis.
Na arquitetura residencial, o projeto deve atender às necessidades dos moradores. Ele deve ser feito pensando nas expectativas deles. A escolha dos materiais e acabamentos também é crucial para a durabilidade e beleza da casa.
Por isso, um projeto arquitetônico bem feito é essencial. Ele garante o sucesso da construção e a felicidade dos moradores futuros.
O que significa arquitetura de uma casa?
A arquitetura de uma casa é mais que beleza. Ela mistura design residencial com funcionalidade. Cada projeto leva em conta a cultura local e o que os moradores precisam.
A estética arquitetônica deve ser harmoniosa com a praticidade. Isso cria espaços que são ao mesmo tempo bonitos e confortáveis.
Usar materiais sustentáveis é essencial na arquitetura de casas. Eles ajudam a proteger o meio ambiente e tornam a construção mais eficiente. A disposição dos espaços deve facilitar a circulação e o conforto.
Um bom projeto arquitetônico se integra ao seu entorno. Ele cria uma harmonia única e traz uma identidade própria. Essa combinação de elementos faz com que a casa seja uma expressão de estilo e funcionalidade. Ela reflete a personalidade dos moradores, oferecendo conforto e eficiência.

O que inclui um projeto de arquitetura?
Um projeto de arquitetura tem vários elementos de projeto arquitetônico essenciais. Eles asseguram a qualidade e a funcionalidade do espaço. A primeira parte é entender o que o cliente precisa. Isso ajuda a criar as plantas que atendem às necessidades do projeto.
Os principais componentes são:
- Levantamento topográfico do terreno
- Análise das normas de segurança e códigos de obra
- Escolha dos materiais e acabamentos
- Estudos de climatização e eficiência energética
- Distribuição dos ambientes para otimizar a circulação
As especificações técnicas são muito importantes. Elas permitem que todos os profissionais saibam cada detalhe para fazer a obra. O design deve ser belo e funcional. Assim, o projeto atende às expectativas do cliente.

O que inclui um projeto arquitetônico?
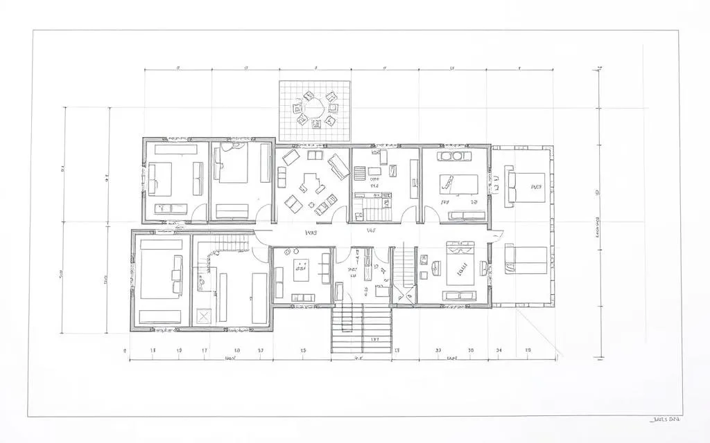
Um projeto arquitetônico é um documento completo. Ele contém desenhos técnicos detalhados para a construção. Você acha nele tudo, desde as fundações até os acabamentos finais.
As informações estão organizadas. Isso garante que cada etapa da construção seja documentada com precisão.
Os desenhos técnicos mostram a disposição dos ambientes. Eles incluem planos de planta, elevações e cortes. Esses elementos visuais são essenciais para a execução do projeto.
Soluções Completas para Transformar Sua Casa com Estilo
Descubra como unir beleza, conforto e inteligência em cada metro da sua casa. Navegue pelos nossos projetos, inspire-se com ideias criativas e comece hoje mesmo a planejar o lar dos seus sonhos.

O projeto também inclui especificações técnicas. Elas descrevem os materiais e os métodos construtivos a serem usados. Essas informações garantem a qualidade e segurança da obra.

O que é preciso para construir uma casa do zero?
Para construir uma casa do zero, é crucial seguir algumas etapas importantes. O primeiro passo é o planejamento de obra. Neste momento, você deve definir um orçamento realista e pensar na viabilidade financeira do projeto. Escolher um terreno adequado também é uma decisão essencial que afetará o projeto.
Depois de escolher o terreno, é necessário criar um projeto arquitetônico detalhado. Esse projeto deve abordar todos os aspectos técnicos e estéticos da obra. Antes de começar a construir, é importante obter as licenças necessárias dos órgãos competentes.
O próximo passo é contratar profissionais qualificados. Você precisará de engenheiros, arquitetos e empreiteiros, cada um com suas funções específicas. Também é importante criar um cronograma de obra para manter o ritmo da construção. Isso ajuda a evitar atrasos e gastos inesperados.
Por fim, é vital estar atento durante as etapas de construção. Isso pode diminuir riscos e garantir a qualidade da sua casa. Com um bom planejamento e a ajuda da equipe certa, você vai realizar o sonho de ter sua própria casa.

Como começar a construir uma casa do zero?
Para começar a construir uma casa, o primeiro passo é planejar bem. É essencial definir um orçamento claro. Isso vai guiar todas as suas decisões.
Depois, contratar um arquiteto ou engenheiro é crucial. Eles farão sua ideia de casa virar algo realista.
Escolher o terreno certo é o próximo passo. A localização e o terreno afetam o custo e a funcionalidade da casa. Após escolher o terreno, é hora de criar o projeto arquitetônico. Esse projeto será o seu guia na construção.

Receba Ideias Exclusivas Direto no Seu E-mail!
Transforme sua casa ou espaço com dicas criativas, projetos exclusivos e acesso antecipado às nossas novidades. Comece a planejar o refúgio perfeito agora mesmo.
Não fique de fora! Cadastre-se agora e tenha acesso exclusivo às melhores ideias e tendências.
Conecte-se com o Bowl Idea:
Siga-nos nas redes sociais para mais inspirações:
É importante conhecer as normas de construção da região. Essas regras afetam o processo de construção. Acompanhar cada etapa da obra é fundamental. Isso garante que tudo seja feito conforme o planejado.
Manter contato constante com os profissionais é essencial. Isso mantém o projeto em trilho e evita surpresas ruins.

Quem faz projeto de casa?
Os projetos de casas são feitos por profissionais de projeto arquitetônico. Eles incluem arquitetos e engenheiros civis. Esses profissionais têm formação especial e conhecimentos técnicos. Eles são essenciais para criar um projeto que atenda às necessidades dos clientes.
Arquitetos e engenheiros trabalham juntos em todo o processo. Desde a ideia inicial até a conclusão da obra. Eles garantem que o projeto siga as normas de segurança e as leis.
Trabalhar em equipe melhora o projeto final. Também faz com que o uso de recursos seja mais eficiente. Isso resulta em construções mais eficientes e sustentáveis.

Quem faz o projeto arquitetônico?
O projeto arquitetônico é feito por arquitetos. Eles são profissionais de arquitetura com formação especial. Eles criam espaços que são organizados e funcionais.
Esses especialistas usam suas habilidades para fazer um design de casas. Eles pensam nas necessidades e gostos dos clientes. Eles também cuidam da estética e segurança das construções.
A atuação dos arquitetos começa com entender o que o cliente deseja. Eles conversam, fazem perguntas e discutem. Assim, captam detalhes importantes para o projeto.
Depois, eles usam esse conhecimento para fazer desenhos técnicos e maquetes. Esses desenhos ajudam a executar a obra.
Os profissionais de arquitetura trabalham com engenheiros e outros especialistas. Isso garante que o projeto funcione na prática. Assim, as construções são seguras, funcionais e atraentes.
Quem faz a planta de uma casa?
Um arquiteto é quem cria as plantas de uma casa. Ele mistura beleza e utilidade na planta baixa. Essa é a base para construir a casa.
A planta deve pensar na disposição dos espaços. Também na forma como as pessoas se movem entre eles. Isso garante que a casa seja confortável e prática.
Designers de interiores também têm um papel importante. Eles trabalham depois que a planta baixa está pronta. Eles melhoram os espaços com decorações e itens funcionais. Assim, a casa fica mais bonita e prática.
A planta baixa não é só sobre a aparência. Ela também inclui detalhes técnicos. Coisas como a estrutura da casa e as instalações elétricas e hidráulicas.
Essas informações são cruciais para a segurança e funcionalidade da casa. Elas ajudam a evitar problemas no futuro.

Qual a diferença entre um arquiteto e um engenheiro?
Entender as diferenças arquitetos e engenheiros é crucial na construção civil. Cada um tem um papel único. O arquiteto se concentra no design, na beleza e na funcionalidade dos espaços. Ele cria ambientes que são bonitos, práticos e confortáveis.
O engenheiro, por sua vez, cuida dos aspectos técnicos e estruturais. Ele assegura que a construção seja segura e cumpra as leis. As funções na construção civil são amplas, mas se unem em um projeto.
A colaboração em projetos entre arquitetos e engenheiros é essencial. Eles trabalham juntos para que tudo atenda às expectativas e normas. Essa parceria faz o projeto realizar-se de forma eficiente e durável.

Quanto um engenheiro cobra para assinar um projeto?
Os custos de projetos de engenharia mudam muito. Isso depende de como é complexo o projeto e da experiência do engenheiro. Geralmente, os honorários de engenheiros ficam entre 5% e 10% do total do projeto. Essa porcentagem pode mudar de acordo com onde você está e quem é o engenheiro.
É muito importante falar sobre os preços de serviços no começo. Isso ajuda a evitar surpresas de dinheiro durante o projeto.
Além disso, algumas empresas têm pacotes com mais serviços. Isso pode fazer os custos de projetos de engenharia valerem mais a pena. Fazer uma pesquisa e comparar as ofertas de diferentes profissionais ajuda a achar o melhor preço para você.

Quanto um engenheiro civil cobra por um projeto?
O valor de projetos de engenharia civil muda muito. Isso acontece por causa de vários fatores. Os engenheiros civis costumam cobrar entre 6% a 12% do custo total da obra. Essa porcentagem pode mudar de acordo com a complexidade do projeto, o tempo para terminar e a experiência do profissional.

Um engenheiro civil deve explicar bem suas tarifas. Assim, você entende melhor o processo. Ao pedir um orçamento, é importante falar sobre o preço de obras e outros detalhes que afetam o custo do projeto.
| Elemento | Descrição | Percentual (%) |
|---|---|---|
| Projeto Simples | Projetos com estrutura básica e pouca complexidade. | 6% |
| Projeto Moderado | Projetos com estrutura mais elaborada e algumas particularidades. | 8% |
| Projeto Complexo | Projetos que exigem maior grau de detalhamento e inovação. | 10% a 12% |
Investir em um engenheiro civil é crucial. Isso garante que seu projeto seja feito bem e siga as normas de segurança. Comparar orçamentos ajuda a escolher o melhor profissional para o seu projeto.
Quanto um arquiteto cobra por um projeto?
Os preços de projetos arquitetônicos mudam muito. Isso acontece por vários motivos. Um grande fator é o honorário do arquiteto, que varia entre 8% e 15% do total da obra. Essa porcentagem pode mudar de acordo com a complexidade do projeto e onde ele está localizado.
É essencial saber todos os custos envolvidos ao contratar um arquiteto. Falar claramente sobre o que você espera e precisa antes de assinar o contrato ajuda muito. É importante que haja transparência sobre os honorários e as etapas do projeto. Isso ajuda a manter um bom relacionamento entre você e o arquiteto.
Quando você está planejando seu projeto, lembre-se de que cada arquiteto tem seu jeito de fazer as coisas. Isso afeta os preços dos projetos. Por isso, é uma boa pesquisar bem e pedir orçamentos de vários arquitetos. Assim, você faz uma escolha mais informada.

Quanto um arquiteto cobra para fazer um projeto de reforma?
Os custos de reforma variam muito. Arquitetos geralmente cobram entre 10% a 20% do total da obra. Isso depende da complexidade das mudanças e do tamanho do espaço.
Avaliar a situação atual da casa e o que se espera da reforma é muito importante. Isso ajuda a definir o preço.

Os honorários de reformas dependem da experiência do arquiteto e do projeto. Em alguns casos, pode haver um contrato com consultoria e acompanhamento. Isso pode aumentar o custo.
É crucial entender a proposta do arquiteto. Assim, as expectativas de ambos estão alinhadas desde o início.
| Fator | Percentual dos Custos | Observações |
|---|---|---|
| Complexidade do projeto | 10% – 20% | Refere-se ao nível de detalhes e modificações necessários. |
| Tamanho do espaço | Variável | Espaços maiores geralmente implicam em custos maiores. |
| Acompanhamento de obra | Adicional | Custos referentes à supervisão durante a execução da reforma. |
Quanto devo cobrar para assinar um projeto de arquitetura?
Definir o valor a ser cobrado para assinar um projeto de arquitetura exige atenção a diversos fatores. A definição de honorários arquitetônicos deve refletir a complexidade do projeto e a experiência do profissional. A cobrança justa é essencial para manter uma relação saudável entre o arquiteto e o cliente.
Um método comum é usar estratégias de preços baseadas em porcentagens do custo estimado da obra. Por exemplo, honorários podem variar entre 5% a 15% do total do orçamento. Isso depende da rapidez e habilidade requeridas para a execução.
Realizar uma análise de mercado ajuda a definir um valor competitivo e justo. Verificar o que outros profissionais estão cobrando é uma boa estratégia.

Considerar os custos de vida locais e a reputação adquirida também influencia a definição dos honorários. Um arquiteto bem estabelecido pode cobrar mais devido à sua experiência e portfólio robusto. Por outro lado, iniciantes podem cobrar menos para atrair clientes.
Em resumo, uma avaliação cuidadosa garante um preço justo para todos. Isso é importante tanto para você quanto para seus clientes.
Quanto devo cobrar para fazer o projeto de uma casa?
Para saber quanto cobrar por um projeto de casa, é importante considerar vários fatores. A complexidade do projeto, o tempo que você vai investir e a situação do mercado local são essenciais. Uma forma comum é cobrar uma taxa percentual, que pode variar de 8% a 15% do total da obra.
É também crucial pensar nas estratégias de cobrança. Por exemplo, você pode cobrar por metro quadrado. Os preços variam muito, indo de R$ 15 a R$ 80 por metro quadrado. Para um projeto de 50m², cobrando R$ 70/m², o custo seria de cerca de R$ 3,500.
Uma dica é pesquisar tabelas sobre o custo de projetos arquitetônicos em diferentes lugares. Isso ajuda a entender as diferenças de preço por região. Assim, você pode fazer uma proposta mais competitiva e realista para o mercado.

Qual o valor de um projeto de arquitetura para uma casa?
O preço de um projeto de arquitetura para uma casa muda muito. Isso acontece por causa de fatores como onde a casa vai ser e como complexa ela vai ser. Os preços médios variam de R$ 35 a R$ 200 por metro quadrado. Isso mostra que há muitas opções no mercado.
Além disso, o custo de projetos de arquitetura pode mudar com a experiência do arquiteto. Arquitetos mais experientes podem cobrar mais por seus serviços.
Quando pensar em investir em arquitetura, é essencial saber o que você precisa. É bom falar com vários profissionais. Assim, você pode ver como os preços podem mudar de acordo com o que você quer para sua casa.
Qual o valor médio de um projeto de arquitetura simples?
O valor de um projeto de arquitetura simples varia entre R$ 3.000 e R$ 10.000. Vários fatores influenciam essa variação. Por exemplo, o tamanho do imóvel e as necessidades do cliente.
Projetos menores geralmente custam menos. Mas isso não significa que a qualidade seja menor. É possível ter um espaço funcional e bonito sem gastar muito.
Para encontrar um bom preço, é bom falar com vários arquitetos. Isso te dá uma ideia melhor do que está disponível. Mas lembre-se, o preço não é tudo. A experiência e o trabalho anterior do arquiteto também são importantes.
Projetos menores podem ser rápidos e fáceis de fazer. Mas precisam de planejamento cuidadoso. Defina seu orçamento pensando em tudo, desde o começo até o fim. Assim, você terá um projeto que você vai adorar.
Perguntas Frequentes Sobre Tudo sobre Projetos de Casas: Da Teoria à Prática e Quanto Custa
O que é um projeto arquitetônico residencial?
Um projeto arquitetônico residencial é um documento técnico. Ele define como será construída uma casa. Inclui estética, funcionalidade e segurança. Contém plantas, cortes e detalhes de acabamentos. Assim, a casa atende às necessidades dos moradores e segue as normas de construção.
O que significa arquitetura de uma casa?
A arquitetura de uma casa é o design e a funcionalidade. Ela deve se adequar ao ambiente e às necessidades dos moradores. Usa materiais sustentáveis.Entender esses elementos ajuda a criar um espaço eficiente e bonito.
O que inclui um projeto de arquitetura?
Um projeto de arquitetura começa com o que o cliente quer. Depois, faz-se um levantamento topográfico e análise de segurança.Escolhe-se os materiais, distribui-se os ambientes e pensa-se na climatização. Esses passos são essenciais para a obra ser bem feita.
O que inclui um projeto arquitetônico?
Um projeto arquitetônico tem desenhos técnicos detalhados. Eles orientam a construção, desde as fundações até os acabamentos finais.Inclui planos de planta, elevações, cortes e detalhes de instalações. A documentação pode também falar sobre métodos construtivos e materiais.
O que é preciso para construir uma casa do zero?
Para construir uma casa do zero, é necessário planejar bem. Primeiro, define-se o orçamento e escolhe-se um terreno.Depois, faz-se um projeto arquitetônico detalhado. É preciso obter licenças e contratar profissionais qualificados. Um cronograma e orçamento realistas são essenciais.
Como começar a construir uma casa do zero?
Para começar a construir uma casa, é preciso planejar com cuidado. Primeiro, define-se o orçamento e contrata-se um arquiteto ou engenheiro.Em seguida, escolhe-se o terreno e faz-se um projeto arquitetônico. É importante conhecer as normas de construção locais. Acompanhar a obra e manter a comunicação com os profissionais são vitais.
Quem faz projeto de casa?
Projetos de casas são feitos por arquitetos e engenheiros civis. Eles têm formação especializada e conhecimento técnico.Trabalham juntos desde a concepção até a execução da obra. Assim, criam espaços funcionais e estéticos.
Quem faz o projeto arquitetônico?
O projeto arquitetônico é feito por arquitetos. Eles usam suas habilidades para combinar estética, funcionalidade e segurança.Um bom arquiteto entende as necessidades do cliente e as transforma em um projeto viável e sustentável.
Quem faz a planta de uma casa?
A planta de uma casa é feita por um arquiteto. Ele considera a estética e a funcionalidade do espaço.Ele pensa na disposição dos ambientes e na acessibilidade.
Qual a diferença entre um arquiteto e um engenheiro?
A principal diferença entre um arquiteto e um engenheiro é a abordagem. O arquiteto se concentra no design e na estética.O engenheiro se foca na parte técnica e estrutural. Ele garante segurança e performance na construção.
Quanto um engenheiro cobra para assinar um projeto?
O valor que um engenheiro cobra para assinar um projeto varia. Pode ser de 5% a 10% do custo total da obra.Isso pode mudar de acordo com a localização e a experiência do profissional.
Quanto um engenheiro civil cobra por um projeto?
Engenheiros civis geralmente cobram entre 6% a 12% do custo da obra. Isso varia conforme a complexidade e a experiência do profissional.
Quanto um arquiteto cobra por um projeto?
O honorário de um arquiteto pode variar. Pode ser de 8% a 15% do valor total da obra.Isso depende da complexidade do projeto e da localização. É importante discutir todos os custos antes de contratar.
Quanto um arquiteto cobra para fazer um projeto de reforma?
Para um projeto de reforma, arquitetos podem cobrar entre 10% a 20% do custo da obra. Isso depende da complexidade das alterações e do tamanho do espaço.
Quanto devo cobrar para assinar um projeto de arquitetura?
Ao definir quanto cobrar para assinar um projeto de arquitetura, é importante considerar a complexidade e a escala do projeto. Também deve-se pensar no mercado local.O valor deve refletir o tempo e a experiência do arquiteto.
Quanto devo cobrar para fazer o projeto de uma casa?
Para determinar o valor de um projeto de casa, é preciso considerar a complexidade, o tempo dedicado e o mercado local. Arquitetos costumam cobrar uma taxa percentual sobre o custo da obra.Essa taxa pode variar de 8% a 15%.
Qual o valor de um projeto de arquitetura para uma casa?
O valor de um projeto de arquitetura para uma casa varia bastante. Os preços médios são entre R$ 35 a R$ 200 por metro quadrado.Isso depende das especificações do projeto e da reputação do arquiteto.
Qual o valor médio de um projeto de arquitetura simples?
O valor médio de um projeto de arquitetura simples é entre R$ 3.000 a R$ 10.000. Isso depende do tamanho e das especificações do projeto.É importante consultar diferentes profissionais para ter uma visão clara do mercado.

Leonardo é engenheiro civil desde 2016 e criador do Bowl Idea, um projeto que une engenharia, criatividade e inspiração para transformar espaços em verdadeiros refúgios. Apaixonado por arquitetura funcional, minimalismo e elementos naturais, compartilha ideias acessíveis para quem busca praticidade com estilo. Atua também com soluções digitais e gestão de projetos, integrando inovação e experiência técnica em cada proposta.
Conheça nossos serviços para transformar sua casa




