O projeto de casa é o ponto de partida para transformar ideias em realidade. Mais do que desenhos técnicos, ele reúne planejamento, funcionalidade e estilo, orientando cada etapa da construção. Neste conteúdo, você vai entender o que compõe o que é projeto de casa, quais profissionais estão envolvidos e como evitar erros que podem comprometer tempo e orçamento. Comece sua obra com segurança e clareza.
O que é o projeto de casa e o que contém nele?
O projeto de casa é o documento técnico e criativo que serve como base para a construção de um imóvel residencial. Ele não apenas orienta os profissionais da obra, como também é essencial para garantir segurança, funcionalidade, estética e economia ao longo de toda a execução da construção.
O que é exatamente um projeto de casa?
O projeto de casa é um conjunto de documentos gráficos e escritos elaborados por um arquiteto ou engenheiro civil, com o objetivo de detalhar todos os aspectos técnicos, legais e visuais de uma construção.
Esse projeto serve como um guia completo para construir uma casa do zero ou para reformá-la com precisão, segurança e dentro das normas técnicas exigidas por lei.
O que contém em um projeto de casa?
Um projeto completo pode conter diversos tipos de documentos e representações gráficas. Os principais elementos que compõem um projeto de casa incluem:
1. Planta baixa
A planta baixa é a representação em escala da casa vista de cima, com cortes horizontais. Ela mostra a distribuição dos ambientes, dimensões dos cômodos, espessura das paredes, posições de portas e janelas, entre outros detalhes.
2. Planta de cobertura
Mostra o telhado ou qualquer estrutura superior da construção, como lajes, áreas técnicas, e sistemas de captação de água.
3. Cortes e fachadas
Os cortes são representações verticais que mostram a estrutura da casa em um plano longitudinal ou transversal. Já as fachadas são os desenhos das vistas externas da construção, exibindo o estilo arquitetônico.
4. Planta de locação
Indica como a casa será posicionada no terreno, considerando recuos obrigatórios, orientação solar, acessos, áreas permeáveis e área construída total.
5. Projeto elétrico
Detalha o posicionamento dos pontos de energia, disjuntores, interruptores, luminárias e tomadas, facilitando a instalação elétrica correta e segura.
6. Projeto hidráulico
Especifica os pontos de água fria e quente, rede de esgoto, caixas de gordura, sistemas de drenagem e reservatórios.
7. Memorial descritivo
Documento que detalha todos os materiais, acabamentos, sistemas e padrões construtivos adotados. É fundamental para comparar orçamentos de fornecedores.
8. ART ou RRT
São documentos de responsabilidade técnica, emitidos pelo arquiteto (RRT – Registro de Responsabilidade Técnica) ou engenheiro (ART – Anotação de Responsabilidade Técnica), que asseguram que a obra será executada com profissional habilitado, conforme exigido por lei.
Por que um projeto de casa é essencial?
Um projeto bem elaborado oferece uma série de benefícios tanto para o proprietário quanto para os profissionais da obra:
- Evita erros e retrabalhos, reduzindo o desperdício de materiais.
- Garante que a construção siga normas técnicas e legais.
- Proporciona previsibilidade orçamentária e melhor controle financeiro.
- Oferece clareza para os profissionais da obra, otimizando o tempo de execução.
- Permite a visualização antecipada da casa por meio de maquetes eletrônicas e renderizações.
Ao investir em um projeto de casa completo e bem elaborado, o proprietário tem a segurança de estar dando o primeiro passo para uma construção bem-sucedida. Ele é o alicerce técnico, estético e legal de qualquer obra — por isso, deve ser feito por profissionais experientes e com conhecimento das exigências da legislação urbana do local da construção.
O que é um projeto de casa pronto?
O projeto de casa pronto é um conjunto de documentos e desenhos arquitetônicos que já foram desenvolvidos, aprovados e estão disponíveis para compra ou uso imediato. Este tipo de projeto pode ser adquirido por quem deseja construir uma casa, mas não quer contratar um arquiteto para criar um projeto exclusivo desde o início. É uma opção prática, econômica e rápida para quem tem pressa para iniciar a obra.
Características do projeto de casa pronto
Um projeto de casa pronto possui algumas características específicas que o tornam uma alternativa atrativa para quem busca praticidade e economia. Entre as principais características estão:
1. Modelo pré-estabelecido
O projeto já vem definido, com todas as plantas e detalhes arquitetônicos estabelecidos. Não há necessidade de começar o planejamento do zero, o que facilita o processo e economiza tempo.
2. Variação de modelos e tamanhos
Existem diversas opções de projetos prontos, desde casas compactas até casas de luxo, com diferentes tamanhos, estilos e distribuições de ambientes, o que permite ao comprador escolher o que mais se adapta às suas necessidades e orçamento.
3. Desenvolvimento por profissionais
Embora seja um projeto pré-existente, ele ainda é elaborado por arquitetos ou engenheiros qualificados, que garantem que o projeto atenda às normas de segurança, sustentabilidade e estética.
Soluções Completas para Transformar Sua Casa com Estilo
Descubra como unir beleza, conforto e inteligência em cada metro da sua casa. Navegue pelos nossos projetos, inspire-se com ideias criativas e comece hoje mesmo a planejar o lar dos seus sonhos.

4. Facilidade de adaptação
Em alguns casos, é possível adaptar o projeto pronto para atender a necessidades específicas do terreno ou preferências pessoais, como pequenas alterações no layout ou nas dimensões dos cômodos. Isso, no entanto, pode exigir o trabalho de um profissional, como um arquiteto, para garantir que a modificação seja viável.
Como funciona a compra de um projeto de casa pronto?
A aquisição de um projeto de casa pronto segue um processo simples. Normalmente, o comprador escolhe o modelo de projeto que mais atende às suas necessidades e realiza a compra. Após isso, ele recebe as plantas, detalhes técnicos e orientações sobre a obra. Esse tipo de projeto já vem pronto para ser levado à prefeitura para obtenção de licenças e alvarás de construção.
1. Compra online
Hoje em dia, é possível encontrar sites especializados na venda de projetos de casas prontos. Esses sites oferecem uma grande variedade de modelos, com descrições detalhadas, plantas baixas e custos aproximados de construção.
2. Entrega rápida
Após a compra, a entrega do projeto ocorre de forma rápida, geralmente em formato digital, o que permite ao comprador começar a obra de forma quase imediata. Em alguns casos, também é possível solicitar o envio do projeto em formato físico.
Vantagens do projeto de casa pronto
Optar por um projeto de casa pronto oferece uma série de vantagens práticas para quem deseja construir:
- Economia de tempo: O projeto já está pronto para ser implementado, o que acelera o início da construção.
- Redução de custos: Projetos prontos costumam ser mais baratos do que contratar um arquiteto para desenvolver um projeto personalizado.
- Menos risco de erro: Como o projeto foi desenvolvido por profissionais experientes, o risco de erros arquitetônicos ou de execução é muito menor.
- Aprovação mais rápida: Projetos prontos já atendem a boa parte das exigências legais e, portanto, têm mais chances de serem aprovados rapidamente pelas prefeituras.
Os projetos de casa prontos são uma excelente opção para quem busca praticidade e economia. Com a vantagem de serem rápidos para adquirir e implementar, esses projetos atendem àqueles que têm pouco tempo ou recursos para contratar um arquiteto para criar um projeto personalizado. No entanto, é importante garantir que o projeto escolhido se encaixe bem no terreno e nas necessidades específicas da obra, podendo, em alguns casos, ser necessário realizar algumas adaptações.
O que está incluso em um projeto pronto?
Ao adquirir um projeto de casa pronto, você está comprando um conjunto completo de documentos que vai guiar toda a construção, desde os primeiros passos até a entrega da obra. Esses projetos são minuciosamente elaborados por arquitetos e engenheiros, seguindo as normas e regulamentações vigentes. Mas, afinal, o que está incluso em um projeto pronto?
Componentes essenciais de um projeto pronto
Um projeto de casa pronto contém diversos elementos técnicos e visuais que ajudam a materializar a construção da casa. A seguir, vamos detalhar os principais componentes que geralmente estão inclusos nesse tipo de projeto:
1. Planta baixa
A planta baixa é o principal documento de um projeto de casa pronto. Ela mostra, em uma visão de cima, a disposição dos ambientes, as dimensões dos cômodos, as aberturas (portas e janelas) e as paredes. Ela serve como um guia para os construtores e também é uma base para a análise da distribuição do espaço.
2. Planta de cobertura
Este é o projeto que descreve o telhado ou cobertura da casa, detalhando sua estrutura e o tipo de material a ser utilizado. Além disso, ela mostra a inclinação do telhado e os sistemas de drenagem de águas pluviais, essenciais para o bom funcionamento do imóvel.

Receba Ideias Exclusivas Direto no Seu E-mail!
Transforme sua casa ou espaço com dicas criativas, projetos exclusivos e acesso antecipado às nossas novidades. Comece a planejar o refúgio perfeito agora mesmo.
Não fique de fora! Cadastre-se agora e tenha acesso exclusivo às melhores ideias e tendências.
Conecte-se com o Bowl Idea:
Siga-nos nas redes sociais para mais inspirações:
3. Fachadas
As fachadas são as vistas externas da casa, representando sua estética e estilo arquitetônico. Elas mostram como a casa será vista de diferentes ângulos (frontal, lateral, posterior), incluindo os detalhes de acabamentos e acabamentos como portas, janelas e outros elementos decorativos.
4. Cortes
Os cortes são representações verticais da casa, mostrando o interior da edificação, o nível do solo e as alturas dos cômodos. Essa parte do projeto é fundamental para entender a distribuição vertical dos espaços e a estrutura interna da construção.
5. Projeto elétrico
O projeto elétrico inclui todos os pontos de eletricidade necessários para a casa, como tomadas, interruptores, luminárias e disjuntores. Ele também indica a distribuição da fiação elétrica e a localização de quadro de energia.
6. Projeto hidráulico
Este projeto detalha os pontos de abastecimento de água (como torneiras, chuveiros e bancadas) e a rede de esgoto da casa. Além disso, ele indica o uso de materiais e tubos adequados, garantindo que a infraestrutura hidráulica da casa funcione de maneira eficiente e sem falhas.
7. Memorial descritivo
O memorial descritivo é um documento que complementa o projeto técnico e descreve em detalhes os materiais, acabamentos e técnicas construtivas que devem ser usados na obra. Ele detalha a qualidade dos materiais, como tipos de pisos, revestimentos, tintas, entre outros.
8. Anotações de responsabilidade técnica (ART ou RRT)
São documentos que asseguram que o projeto foi elaborado por um profissional habilitado e responsável. Eles garantem que o trabalho realizado está de acordo com as normas e regulamentações legais.
9. Planta de locação
A planta de locação mostra onde o imóvel será posicionado no terreno, considerando as medidas de recuos, orientação solar, acessos e zonas de ventilação. Ela é essencial para garantir que a construção esteja em conformidade com as exigências do município.
10. Possível projeto de paisagismo
Alguns projetos prontos incluem ainda um projeto de paisagismo, que detalha como será o jardim e as áreas externas, além de sugerir plantas e elementos decorativos.
O que não está incluso em um projeto pronto?
Embora um projeto de casa pronto seja bastante completo, em alguns casos, ele pode não incluir certos aspectos, dependendo da empresa ou do profissional responsável pelo desenvolvimento. Alguns exemplos de itens que podem não estar inclusos são:
- Adaptação personalizada do projeto: Mudanças no layout ou em detalhes arquitetônicos podem não ser contempladas no projeto pronto.
- Consultas adicionais ao arquiteto ou engenheiro: Caso seja necessário consultar o profissional para ajustes específicos, pode ser cobrado à parte.
- Aprovação em órgãos municipais: O projeto pode precisar de ajustes ou adequações para ser aprovado pela prefeitura local.
Vantagens de comprar um projeto pronto
Ao optar por um projeto de casa pronto, você ganha diversos benefícios, como:
- Facilidade e agilidade: Como o projeto já está pronto, a aprovação é mais rápida, e a execução da obra pode ser iniciada imediatamente.
- Custo mais baixo: Comparado a um projeto personalizado, os projetos prontos costumam ter um custo muito mais acessível.
- Segurança e confiança: Projetos prontos geralmente são elaborados por profissionais experientes, garantindo segurança e qualidade.
Um projeto de casa pronto é uma excelente opção para quem deseja construir rapidamente, com um orçamento controlado e sem perder em qualidade. Ao entender o que está incluso no projeto, você poderá fazer uma escolha mais informada e garantir que sua obra seja bem-sucedida desde o início.

Aproveite para acessar nosso biblioteca gratuíta de projetos
Quanto custa uma planta de casa pronta?
O custo de uma planta de casa pronta pode variar significativamente dependendo de diversos fatores, como o tamanho da casa, o complexo da arquitetura, o estilo escolhido e até o fornecedor do projeto. Contudo, entender os custos envolvidos pode ajudar a planejar melhor a obra e evitar surpresas no orçamento.
Fatores que influenciam o preço de uma planta de casa pronta
O preço de uma planta de casa pronta não é fixo, pois ele depende de alguns fatores importantes que afetam o custo final. Vamos ver os principais:
1. Tamanho da casa
O tamanho da casa é um dos principais determinantes do custo de um projeto pronto. Casas menores, com um layout simples e poucas alterações, tendem a ser mais baratas do que casas grandes com múltiplos andares, mais cômodos e detalhes arquitetônicos complexos.
2. Complexidade do projeto
A complexidade arquitetônica também influencia o preço. Projetos com detalhes mais elaborados, como telhados inclinados, acabamentos diferenciados e formas geométricas complexas, tendem a ser mais caros. Já projetos mais simples, com formas retas e menos detalhes decorativos, costumam ter um preço mais acessível.
3. Estilo da construção
O estilo da casa também pode impactar o custo do projeto. Por exemplo:
- Casas modernas ou minimalistas podem ser mais caras, pois exigem materiais mais específicos e acabamentos refinados.
- Casas clássicas ou rústicas podem ter um custo variado, dependendo das escolhas de acabamentos e do tipo de estrutura.
4. Localização do fornecedor
O fornecedor do projeto também é um fator que influencia o preço. Empresas ou profissionais de regiões com maior custo de vida geralmente cobram mais, enquanto os fornecedores locais em cidades menores podem oferecer preços mais acessíveis.
5. Personalização do projeto
Embora as plantas de casas prontas sejam, por definição, projetos pré-elaborados, algumas podem oferecer opções de personalização. Isso pode incluir ajustes no layout, tamanho dos cômodos, ou outras mudanças no estilo e acabamento. Essas personalizações geralmente aumentam o custo do projeto.
Preço médio de uma planta de casa pronta
Os preços de plantas prontas podem variar bastante, dependendo dos fatores mencionados. Para dar uma ideia geral:
1. Projetos mais simples e pequenos:
- Plantas de casas pequenas e simples (de 1 a 2 quartos, layout mais direto) podem ter preços a partir de R$ 500,00 a R$ 1.500,00.
2. Projetos de médio porte:
- Projetos de tamanho médio, com 3 a 4 quartos e mais detalhes arquitetônicos, podem custar entre R$ 2.000,00 a R$ 6.000,00.
3. Projetos de grande porte e sofisticados:
- Para casas maiores e mais complexas (com múltiplos andares, acabamentos luxuosos e design diferenciado), os preços podem ultrapassar R$ 10.000,00, podendo chegar a valores ainda mais elevados dependendo das personalizações.
Custos adicionais ao adquirir uma planta de casa pronta
Além do preço da planta em si, existem outros custos adicionais a considerar ao adquirir um projeto de casa pronto:
1. Taxas de aprovação
Em muitas regiões, o projeto precisa ser submetido à prefeitura local para aprovação antes de começar a obra. Este processo pode envolver o pagamento de taxas administrativas, que variam conforme o município.
2. Consultoria profissional
Se for necessário fazer ajustes no projeto, você pode precisar contratar um arquiteto ou engenheiro para supervisionar as mudanças. Isso pode implicar em taxas adicionais para esses serviços.
3. Custos com licenciamento e registros
A anotação de responsabilidade técnica (ART) ou o registro de responsabilidade técnica (RRT), que são necessários para garantir a legalidade do projeto, também podem gerar custos extras.
4. Aquisição de materiais
Em alguns casos, a planta de casa pronta pode sugerir materiais específicos para a construção. A aquisição desses materiais pode impactar o orçamento final, principalmente em projetos que utilizam materiais de alta qualidade.
Como economizar na compra de uma planta de casa pronta?
Embora o custo de uma planta de casa pronta possa variar, há formas de economizar ao escolher um projeto. Algumas dicas para isso incluem:
- Pesquise e compare preços entre diferentes fornecedores e profissionais.
- Escolha um projeto mais simples, especialmente se o orçamento for apertado. Projetos menores e mais básicos tendem a ser mais baratos.
- Evite personalizações caras que podem aumentar significativamente o valor final do projeto.
O preço de uma planta de casa pronta pode variar bastante, dependendo do tamanho, complexidade e estilo escolhido. Antes de tomar uma decisão, é importante entender todos os fatores que impactam o valor do projeto e fazer uma escolha que se encaixe dentro do seu orçamento e atenda às suas necessidades. Com um planejamento cuidadoso, é possível encontrar projetos de qualidade a preços acessíveis, sem comprometer a segurança e a funcionalidade da obra.
É possível comprar o projeto pronto + materiais e mão de obra?
Sim, é possível adquirir um projeto de casa pronto juntamente com os materiais e a mão de obra necessários para a execução da obra. Essa opção, que está se tornando cada vez mais popular, oferece uma solução completa para quem deseja construir sua casa de maneira mais prática e sem se preocupar com cada etapa do processo de construção.
Como funciona a compra do projeto pronto + materiais e mão de obra?
Quando você opta por comprar o projeto pronto, junto com os materiais e mão de obra, geralmente está contratando um pacote completo de serviços oferecido por empresas ou construtoras especializadas. Esse modelo de venda é interessante porque facilita o gerenciamento da obra, reunindo todas as etapas sob a responsabilidade de um único fornecedor.
1. Compra do projeto pronto
O primeiro passo é adquirir o projeto de casa pronto, que já está desenhado, detalhado e pronto para ser executado. Nesse caso, o projeto pode ser uma opção simples ou mais elaborada, conforme o seu desejo e orçamento. Alguns fornecedores oferecem pacotes de projetos prontos que já incluem as plantas baixas, projeto elétrico, projeto hidráulico, memorial descritivo e outros documentos necessários.
2. Escolha dos materiais
A compra de materiais geralmente ocorre de maneira personalizada, onde você escolhe o tipo de acabamento, revestimentos, materiais para pisos, entre outros. Algumas construtoras e fornecedores de projetos prontos oferecem kits de materiais, nos quais os itens já estão previamente definidos e podem ser ajustados de acordo com o seu orçamento.
3. Contratação da mão de obra
A mão de obra pode ser contratada diretamente com a construtora ou com os profissionais especializados que a empresa disponibiliza. Nesse modelo, o engenheiro ou arquiteto responsável vai coordenar a obra, garantindo que o projeto seja executado conforme o planejamento e os materiais escolhidos.
Vantagens de comprar o projeto pronto + materiais e mão de obra
Esse modelo de contratação oferece diversas vantagens tanto para quem está construindo pela primeira vez quanto para quem busca comodidade e segurança no processo. Confira as principais vantagens:
1. Facilidade e comodidade
Ao comprar o projeto pronto com materiais e mão de obra, você tem a comodidade de contratar tudo de uma vez, o que elimina a necessidade de se preocupar com diferentes fornecedores e a coordenação entre eles. Isso simplifica bastante o processo de construção.
2. Controle sobre o orçamento
Esse modelo permite um controle melhor sobre o orçamento, já que você recebe um valor fechado para o projeto, materiais e execução da obra. Não há surpresas com custos extras durante a construção, pois os itens estão inclusos no pacote.
3. Execução mais rápida
Com todos os itens já definidos e a mão de obra pronta para começar, a obra pode ser executada de forma mais rápida. A integração entre o projeto e os materiais facilita o andamento da construção, evitando atrasos causados pela falta de recursos ou pela contratação de profissionais de última hora.
4. Garantia de qualidade
Muitas vezes, as empresas que oferecem projetos prontos com materiais e mão de obra também fornecem garantia de execução e qualidade. Isso significa que, em caso de algum problema durante ou após a obra, você pode contar com o suporte da empresa para resolver eventuais falhas.
Desvantagens desse modelo
Apesar de ser vantajoso para muitos, esse modelo também apresenta algumas desvantagens que devem ser consideradas:
1. Falta de personalização
Ao comprar um pacote completo de projeto, materiais e mão de obra, você pode não ter tanta liberdade para personalizar os detalhes da obra. Algumas alterações podem ser possíveis, mas geralmente não são tão flexíveis quanto em projetos feitos sob medida.
2. Custos adicionais de alterações
Caso você deseje fazer alterações significativas no projeto ou nos materiais, isso pode resultar em custos adicionais. Algumas construtoras oferecem pacotes fechados e, para fazer mudanças, pode ser necessário pagar mais por modificações no contrato inicial.
3. Dependência de um único fornecedor
Com esse modelo, você estará dependente de uma única empresa ou construtora para toda a obra. Caso haja problemas com a execução ou com os materiais fornecidos, a solução pode demorar mais, e você pode não ter a mesma liberdade de escolher outro fornecedor.
Como escolher a melhor opção?
Para escolher a melhor opção de projeto pronto + materiais e mão de obra, é importante considerar alguns pontos:
- Pesquise bem sobre a construtora ou fornecedor: Verifique o histórico da empresa, as avaliações de clientes anteriores e a experiência dela no mercado.
- Verifique o custo-benefício: Compare o pacote oferecido com o valor total de contratar os serviços separadamente. Às vezes, a opção de comprar tudo junto pode ser vantajosa, mas em outras, pode sair mais caro.
- Considere a flexibilidade: Se você precisar de alterações no projeto ou na escolha de materiais, verifique se a empresa oferece esse tipo de personalização e quais os custos envolvidos.
Comprar um projeto de casa pronto junto com materiais e mão de obra pode ser uma excelente solução para quem busca agilidade e simplicidade no processo de construção. Com todas as etapas já integradas, você terá menos preocupação com a coordenação entre fornecedores, além de garantir um orçamento mais controlado e execução rápida. No entanto, é importante analisar as opções com cuidado para garantir que o pacote escolhido atenda às suas expectativas e necessidades de personalização.
Qual a importância do projeto de casa?
O projeto de casa é, sem dúvida, o primeiro passo para garantir o sucesso de qualquer construção. Ele serve como o alicerce que orienta desde a execução da obra até a finalização e entrega do imóvel. A importância de um bom projeto de casa vai muito além da simples distribuição dos ambientes; ele é fundamental para garantir funcionalidade, segurança, estabilidade e estilo ao seu lar.
Por que o projeto de casa é importante?
O projeto de casa é a representação visual e técnica de tudo o que você espera da sua nova residência. Ele integra todas as necessidades do proprietário com as exigências da legislação local, garantindo que a construção seja segura e viável. Além disso, o projeto de casa define uma série de elementos que serão fundamentais para o sucesso da obra.
1. Planejamento e organização
O principal benefício de ter um projeto bem elaborado é o planejamento detalhado. Ele permite que você visualize, com antecedência, todos os aspectos da obra: distribuição dos ambientes, tamanho dos cômodos, estruturas e acabamentos. Um bom projeto garante que a construção seja organizada e bem estruturada, evitando surpresas no meio da obra.
2. Garantia de funcionalidade
Um projeto bem elaborado vai muito além da estética e do visual. Ele é crucial para garantir que os espaços sejam funcionais e que as necessidades dos moradores sejam atendidas. A distribuição dos ambientes, o fluxo de circulação, a ventilação natural, o aproximamento entre cômodos e a otimização de espaços são aspectos fundamentais que o projeto de casa aborda, tornando o ambiente prático e confortável.
3. Segurança e estabilidade
Um dos aspectos mais importantes de um projeto de casa é a segurança estrutural. A resistência dos materiais, a fundação e a distribuição de cargas são elementos que precisam ser calculados corretamente para evitar problemas graves no futuro, como rachaduras, deslocamento estrutural ou desmoronamento. O projeto garante que todos os aspectos estruturais sejam atendidos de acordo com as normas de segurança.
4. Conformidade com as normas e regulamentos
Cada município tem suas próprias normas de construção, que abrangem desde a altura máxima do imóvel até os recuos obrigatórios do terreno. O projeto de casa é a maneira de garantir que sua construção atenda a todos esses requisitos e seja aprovada pela prefeitura. Sem um projeto que siga essas normas, a obra pode ser embargada, e você pode ser multado por não cumprir as exigências legais.
Benefícios de um bom projeto de casa
A elaboração de um projeto de casa com a ajuda de um arquiteto ou engenheiro qualificado oferece vários benefícios que impactam diretamente a qualidade da obra e a satisfação dos moradores. Vamos explorar alguns desses benefícios:
1. Eficiência energética
Projetos bem planejados levam em consideração a eficiência energética, buscando otimizar o uso de energia e recursos naturais. Isso pode incluir estratégias como a incorporação de painéis solares, a distribuição inteligente das janelas para aproveitamento da luz natural, a ventilação cruzada para reduzir o uso de ar-condicionado e o uso de materiais sustentáveis.
2. Valorização do imóvel
Um imóvel com projeto bem estruturado e acabamentos de qualidade tende a se valorizar com o tempo. O projeto de casa é essencial para que o imóvel tenha alta demanda no mercado imobiliário caso você decida vendê-lo no futuro.
3. Redução de custos e desperdícios
Com um projeto bem feito, você pode planejar todos os detalhes da obra antecipadamente, o que ajuda a reduzir os custos e minimizar desperdícios de materiais. Ao contrário de uma obra sem planejamento, onde mudanças de última hora podem ser caras e problemáticas, um projeto bem planejado facilita a execução da obra dentro do orçamento.
4. Otimização do espaço
O projeto de casa é fundamental para aproveitar ao máximo o espaço disponível no terreno, criando ambientes que atendam às necessidades da família sem sobrecarregar a construção. Isso é especialmente importante em terrenos pequenos, onde cada metro quadrado conta. O projeto ajuda a criar ambientes bem distribuídos, funcionais e esteticamente agradáveis.
Como garantir a qualidade do projeto de casa?
Para garantir que o seu projeto de casa atenda a todas as suas necessidades e expectativas, é importante seguir algumas etapas fundamentais:
1. Contratar profissionais qualificados
Certifique-se de contratar um arquiteto ou engenheiro qualificado e com experiência em projetos residenciais. Profissionais competentes têm o conhecimento necessário para criar um projeto funcional, seguro e em conformidade com as leis locais.
2. Discutir suas necessidades e desejos
Antes de começar a obra, converse com o profissional sobre suas necessidades e preferências. O projeto deve ser uma combinação das suas expectativas com as necessidades de espaço e funcionalidade.
3. Realizar ajustes durante o processo
Embora o projeto inicial seja fundamental, é importante estar disposto a realizar ajustes durante o desenvolvimento. À medida que a obra avança, podem surgir novas ideias ou ajustes necessários.
O projeto de casa é uma parte essencial de qualquer obra, garantindo que o imóvel atenda aos requisitos de funcionalidade, segurança, estética e sustentabilidade. Investir em um projeto bem elaborado resulta em economia ao longo da obra e em um imóvel de qualidade que atenderá às necessidades da sua família por muitos anos. Portanto, não subestime a importância do projeto: ele é a base de toda a construção.

Projetos grátis para você construir com estilo
Projetos de casa e a sua importância
Os projetos de casa são uma das etapas mais importantes na construção de um imóvel. Eles não só garantem que a obra seja executada de maneira eficiente, mas também proporcionam segurança, conforto e estilo ao seu lar. Desde o planejamento inicial até a entrega final, um projeto bem estruturado é essencial para que sua casa atenda às suas expectativas e necessidades.
A importância dos projetos de casa
Um projeto de casa vai muito além da simples distribuição dos ambientes. Ele envolve um planejamento detalhado que leva em consideração diversos fatores, como a legislação local, as condições do terreno, o orçamento disponível e as preferências pessoais dos moradores. Vamos ver os principais aspectos que demonstram a importância de um projeto de casa.
1. Planejamento de espaço e funcionalidade
O principal objetivo de um projeto de casa é garantir que o espaço seja usado da maneira mais eficiente possível. A distribuição dos cômodos deve ser pensada de forma que a circulação seja confortável e que os ambientes atendam às necessidades da família. Um projeto bem planejado aproveita cada metro quadrado disponível, criando ambientes funcionais e aconchegantes.
2. Segurança e estabilidade
O projeto de casa é fundamental para garantir a segurança estrutural da construção. Ele detalha como a casa será construída, especificando os materiais e estruturas necessárias para garantir que a obra seja estável e resistente. Um bom projeto também leva em conta o tipo de solo, a inclinação do terreno e outros fatores que podem impactar a segurança da edificação.
3. Cumprimento de normas e regulamentos
Cada município possui suas próprias normas de construção que devem ser seguidas para garantir que a obra esteja de acordo com a legislação. O projeto de casa garante que a construção atenda a todos esses requisitos legais e seja aprovada pela prefeitura. Isso evita problemas futuros com multas ou até mesmo a demolição de estruturas irregulares.
4. Economia de tempo e dinheiro
Um projeto bem-feito ajuda a economizar tempo e dinheiro durante a execução da obra. Com um planejamento claro, fica mais fácil controlar o orçamento e evitar retrabalhos. Além disso, o projeto pode antecipar problemas que poderiam surgir durante a construção, como a necessidade de ajustes no terreno ou na estrutura, o que pode aumentar os custos.
Benefícios adicionais de um projeto de casa bem elaborado
Além de ser essencial para a construção, um projeto de casa também oferece vários benefícios adicionais que tornam a obra mais eficiente e a casa mais confortável:
1. Sustentabilidade e eficiência energética
Um bom projeto pode incorporar soluções sustentáveis que visam o uso eficiente de energia e recursos naturais. Isso pode incluir o uso de painéis solares, o aproveitamento da luz natural, sistemas de captação de água da chuva e a escolha de materiais ecológicos. Essas práticas não apenas ajudam o meio ambiente, mas também reduzem os custos de manutenção da casa a longo prazo.
2. Estilo e estética
O projeto de casa também é responsável por definir o estilo arquitetônico do imóvel. Se você tem uma ideia clara do tipo de casa que deseja, o projeto pode transformar essa visão em realidade, garantindo que a construção seja não apenas funcional, mas também visualmente agradável e alinhada ao seu gosto pessoal.
3. Valorização do imóvel
Uma casa com um projeto arquitetônico bem planejado tende a se valorizar com o tempo. O design inteligente, o uso de materiais de qualidade e a integração com o ambiente ao redor podem aumentar a demanda no mercado imobiliário, tornando o imóvel mais atrativo e valorizado.
O que considerar ao contratar um projeto de casa?
Ao contratar um projeto de casa, é importante ter em mente alguns pontos cruciais que podem influenciar a qualidade e o custo do trabalho:
1. Escolher profissionais qualificados
Certifique-se de contratar profissionais capacitados, como arquitetos e engenheiros civis, com experiência na elaboração de projetos de casas. Eles serão responsáveis por garantir que a obra seja executada com segurança, qualidade e dentro das normas legais.
2. Definir o orçamento
É importante definir um orçamento claro para o projeto de casa, levando em consideração todos os custos, desde os materiais até a mão de obra. O projeto deve ser desenvolvido dentro dos limites financeiros estabelecidos, sem comprometer a qualidade da construção.
3. Entender as suas necessidades e desejos
Antes de iniciar o projeto, converse com o profissional sobre suas necessidades, desejos e expectativas para o imóvel. O projeto deve ser uma combinação de funcionalidade e estilo, atendendo ao seu gosto pessoal, mas também às exigências práticas do dia a dia.
Considerações finais
Os projetos de casa são a base de qualquer obra bem-sucedida. Eles garantem a segurança, funcionalidade, estética e sustentabilidade do imóvel, além de ajudarem a otimizar o orçamento e o tempo da construção. Ao investir em um projeto de casa bem elaborado, você está garantindo que sua residência será confortável, segura e de qualidade. Por isso, é essencial contar com profissionais qualificados e planejar cuidadosamente cada detalhe da obra.
3 Vantagens de investir em um projeto de casa pronto
Optar por um projeto de casa pronto é uma alternativa vantajosa para muitos que desejam economizar tempo, dinheiro e evitar a complexidade de um projeto personalizado do zero. Comprar um projeto pronto significa ter acesso a um modelo já aprovado e testado, sem a necessidade de se preocupar com o desenvolvimento do planejamento arquitetônico desde o início. A seguir, vamos explorar as três principais vantagens dessa escolha.
1. Economia de tempo e agilidade na construção
Um dos maiores benefícios de optar por um projeto de casa pronto é o tempo que você economiza. Ao invés de ter que passar por um processo demorado de criação do projeto do zero, você já tem acesso a um modelo que está pronto para ser executado. Isso acelera significativamente o início da construção, uma vez que o projeto já está aprovado e detalhado, pronto para ser enviado à prefeitura para as devidas licenças e autorizações.
Além disso, como o projeto é padronizado, não há necessidade de longas discussões e ajustes com o arquiteto, o que torna o processo mais rápido. Você também pode evitar as delongas que muitas vezes ocorrem durante a fase de aprovação do projeto, já que os projetos prontos têm maiores chances de serem aprovados rapidamente pelas autoridades locais.
2. Redução de custos e previsibilidade financeira
Investir em um projeto de casa pronto é uma excelente forma de reduzir custos em comparação com a contratação de um arquiteto para criar um projeto personalizado. Com projetos prontos, os preços são fixos, e você sabe exatamente quanto irá gastar com o projeto arquitetônico, o que facilita o planejamento financeiro. Isso permite que você tenha um orçamento mais previsível, sem surpresas ou gastos inesperados com alterações e ajustes de última hora.
Além disso, como o projeto é elaborado por profissionais qualificados, você evita possíveis erros que poderiam surgir em um projeto sem o devido acompanhamento técnico. Isso também contribui para uma execução mais eficiente, sem necessidade de correções durante a obra, o que também pode gerar mais gastos.
3. Qualidade e segurança garantidas
Outro grande benefício dos projetos prontos é a qualidade e a segurança que eles oferecem. Esses projetos são criados por arquitetos e engenheiros experientes e, portanto, seguem normas técnicas e regulamentos de segurança estabelecidos para garantir que a construção seja estável e durável. Ao escolher um projeto pronto, você tem a garantia de que ele foi testado e aprovado em termos de funcionalidade, segurança estrutural e compliance com a legislação local.
Além disso, muitos projetos prontos já incluem uma análise detalhada da infraestrutura da casa, como o sistema elétrico, hidráulico e de esgoto. Isso assegura que todos os aspectos técnicos da obra sejam bem planejados e executados de maneira eficiente e sem riscos de falhas.
Investir em um projeto de casa pronto é uma excelente escolha para quem busca agilidade, redução de custos e segurança durante a construção. Além de ser uma opção mais acessível financeiramente, ele oferece a garantia de qualidade e a tranquilidade de saber que o projeto já foi elaborado por profissionais capacitados, seguindo todas as normas técnicas e regulatórias necessárias. Se o seu objetivo é construir uma casa de forma rápida e eficiente, a opção por um projeto pronto é uma escolha estratégica e inteligente.
Qual a vantagem de comprar um projeto de casa?
Comprar um projeto de casa é uma opção cada vez mais popular entre aqueles que desejam construir sem precisar começar tudo do zero. Ao invés de contratar um arquiteto para criar um projeto personalizado, muitos preferem adquirir um projeto pronto, que já está detalhado e aprovado. Mas, afinal, quais são as vantagens dessa escolha?
1. Custo mais baixo e previsibilidade orçamentária
Uma das principais vantagens de comprar um projeto de casa pronto é o custo mais acessível. Projetos prontos são significativamente mais baratos do que contratar um arquiteto para desenvolver um projeto personalizado. Isso ocorre porque o projeto pronto já foi desenvolvido previamente, o que reduz os custos de pesquisa, planejamento e desenvolvimento.
Além disso, como o preço do projeto é fixo, você tem uma previsibilidade financeira muito maior. Você sabe exatamente quanto vai pagar pelo projeto, sem surpresas de custos adicionais que podem surgir em um projeto feito sob medida.
Essa economia se estende também ao tempo de execução da obra. Com um projeto pronto, não há necessidade de um longo período de ajustes e alterações, o que ajuda a manter o cronograma dentro do planejado e evita atrasos.
2. Facilidade e agilidade no processo de aprovação
Os projetos prontos têm uma grande vantagem quando se trata de aprovação junto às prefeituras e órgãos competentes. Como esses projetos já foram desenvolvidos dentro das normas técnicas e regulamentações locais, eles têm mais chances de serem aprovados rapidamente, sem a necessidade de longos processos de ajustes.
Ao contrário de projetos personalizados, que podem demandar várias revisões até serem aceitos pelas autoridades, os projetos prontos já seguem os padrões exigidos para licenciamento e autorização de construção. Isso facilita a obtenção do alvará de construção e acelera o início da obra.
3. Projeto testado e comprovado
Uma grande vantagem de comprar um projeto de casa pronto é que ele já foi testado e comprovado em termos de funcionalidade e segurança. Muitos projetos prontos foram desenvolvidos por arquitetos experientes, testados em diversas situações práticas e já passaram por aprovações legais. Isso significa que, ao adquirir um projeto pronto, você tem a garantia de que ele funcionará bem e atenderá às suas necessidades.
Além disso, esses projetos geralmente são criados com foco na eficiência energética, sustentabilidade e uso inteligente do espaço, garantindo que sua casa seja moderna e confortável, sem desperdiçar recursos ou comprometer a qualidade.
4. Economia de tempo
A economia de tempo é uma das maiores vantagens ao optar por comprar um projeto de casa pronto. Enquanto um projeto personalizado pode levar semanas ou até meses para ser desenvolvido, um projeto pronto já está disponível para você, permitindo que a construção comece quase imediatamente. Isso é especialmente vantajoso para quem tem um cronograma apertado ou deseja iniciar a obra o mais rápido possível.
5. Opções variadas e personalização limitada
Uma desvantagem do projeto pronto é a falta de personalização completa, mas, em contrapartida, você pode escolher entre uma diversidade de modelos e estilos que atendem às necessidades mais comuns. Muitos projetos prontos oferecem a opção de pequenas adaptações, como ajustar o número de cômodos ou mudar o layout, permitindo que você adicione um toque pessoal sem complicar o processo.
Comprar um projeto de casa pronto oferece uma série de vantagens, como economia de tempo, redução de custos e agilidade na aprovação junto às autoridades. Ao optar por um projeto pronto, você tem a segurança de um design comprovado e funcional, além de um processo de construção mais rápido e previsível. Para quem busca praticidade e eficiência, essa é uma opção inteligente e vantajosa.

Inspire-se com modelos de casas gratuitos
Como vou saber se seguro?
Uma das maiores preocupações ao construir ou reformar uma casa é garantir que o projeto e a obra sejam seguros. A segurança não se refere apenas ao uso de materiais de qualidade, mas também ao cumprimento das normas e legislações locais. Então, como você pode ter certeza de que o projeto da sua casa será seguro?
1. Verifique a qualificação dos profissionais responsáveis
O primeiro passo para garantir a segurança do seu projeto de casa é garantir que ele seja elaborado por profissionais qualificados. Os arquitetos e engenheiros devem ser registrados nos conselhos profissionais (CAU e CREA) e ter experiência comprovada em projetos residenciais. A qualificação e a experiência desses profissionais são essenciais para garantir que o projeto atenda às normas de segurança estrutural, eficiência energética, sustentabilidade e funcionalidade.
1.1 Anotação de Responsabilidade Técnica (ART) ou Registro de Responsabilidade Técnica (RRT)
Todo projeto arquitetônico deve ser acompanhado de uma ART (Anotação de Responsabilidade Técnica) ou RRT (Registro de Responsabilidade Técnica), que é um documento que formaliza a responsabilidade do profissional sobre a obra. Este registro serve para garantir que a obra será realizada conforme as normas técnicas e exigências legais.
2. Verifique a conformidade com as normas e regulamentações locais
Outra forma de garantir que o seu projeto será seguro é verificar se ele cumpre todas as normas e regulamentações locais. Cada município tem requisitos específicos para construções, como recuos, alturas máximas, tipos de fundação, entre outros. Certifique-se de que o projeto de casa esteja de acordo com o Código de Obras da sua cidade, além de considerar as normas de segurança, como acessibilidade, ventilação e instalações elétricas e hidráulicas.
Os projetos prontos geralmente já são elaborados levando em conta essas normas e exigências, o que aumenta a probabilidade de aprovação na prefeitura e garante a conformidade legal. Se você contratar um arquiteto ou engenheiro, certifique-se de que o projeto seja submetido para aprovação antes de iniciar a construção.
3. Utilização de materiais de qualidade
A escolha dos materiais que serão usados na construção também desempenha um papel fundamental na segurança da obra. Materiais de baixa qualidade ou inadequados podem comprometer a estrutura e a durabilidade da construção. Por isso, é importante que o projeto de casa especifique o uso de materiais certificados, como cimento, tijolos, vergalhões e ferragens.
Um projeto bem elaborado deve indicar não apenas as dimensões e o formato das estruturas, mas também os materiais a serem usados e suas especificações técnicas, garantindo que o imóvel seja construído com materiais de alta resistência e durabilidade.
4. Avaliação e inspeção da obra
Durante a execução da obra, é fundamental contar com o acompanhamento de um engenheiro civil ou arquiteto responsável pela execução do projeto. Esses profissionais devem realizar inspeções regulares para garantir que a obra está sendo construída conforme o projeto aprovado.
4.1 Fiscalização e controle de qualidade
A fiscalização constante da obra, seja por parte do engenheiro ou de um técnico especializado, é essencial para garantir que o processo de construção esteja sendo executado de acordo com os padrões de qualidade estabelecidos no projeto. Isso inclui verificar as fundamentações, estruturas e instalações elétricas e hidráulicas, para que tudo esteja em conformidade com o que foi planejado e sem falhas de segurança.
5. Certificação de segurança
Em algumas situações, pode ser necessário obter uma certificação de segurança para a construção, especialmente em projetos mais complexos, como casas de múltiplos andares ou estruturas especiais. A certificação de segurança verifica se a obra está sendo executada de acordo com os mais altos padrões de qualidade e segurança estrutural.
Considerações finais
Garantir que o seu projeto de casa seja seguro exige a combinação de profissionais qualificados, materiais de qualidade, conformidade com as normas e uma fiscalização rigorosa durante a execução da obra. Com essas precauções, você pode ter a certeza de que sua casa será construída com segurança, respeitando todas as normas técnicas e garantindo a proteção dos moradores.
Posso usar o projeto para dar entrada na prefeitura?
Sim, é possível utilizar o projeto de casa para dar entrada na prefeitura e obter as licenças necessárias para iniciar a construção. No entanto, antes de dar esse passo, é importante entender o processo e os documentos exigidos para garantir que o projeto seja aprovado sem problemas.
O que é necessário para dar entrada na prefeitura?
Para que um projeto de casa seja aprovado pela prefeitura, ele precisa estar em conformidade com o Código de Obras e Urbanismo do município, que define as regras para construção, como alturas máximas, recuos obrigatórios, zoneamento urbano e outras exigências técnicas.
Geralmente, o processo de aprovação do projeto envolve a entrega de documentos específicos que devem ser avaliados pelos órgãos responsáveis da prefeitura. Vamos explorar os principais requisitos:
1. Documentação necessária
Ao levar o seu projeto de casa à prefeitura, você precisará apresentar alguns documentos importantes, como:
- Projeto arquitetônico completo: Incluindo planta baixa, cortes, fachadas e outros detalhes necessários.
- Memorial descritivo: Documento que descreve os materiais a serem usados na obra e o tipo de construção.
- Anotação de Responsabilidade Técnica (ART) ou Registro de Responsabilidade Técnica (RRT): Esses documentos devem ser assinados por um arquiteto ou engenheiro responsável pela elaboração do projeto, garantindo que ele está de acordo com as normas técnicas e de segurança.
- Cópia do título de propriedade ou contrato de compra e venda do terreno: Esse documento comprova que você é o proprietário do terreno ou tem permissão para construir no local.
2. Conformidade com as normas urbanísticas
O projeto precisa atender a todas as normas urbanísticas estabelecidas pela prefeitura. Isso inclui questões como:
- Recuos obrigatórios (distâncias mínimas entre a construção e as divisas do terreno).
- Altura máxima permitida para o imóvel.
- Áreas permeáveis (quanto da área total do terreno deve ser destinada à vegetação ou áreas abertas).
- Zoneamento urbano, que define se o local é destinado a residências, comércio ou indústria.
Antes de levar o projeto à prefeitura, é importante consultar a legislação local para garantir que o projeto esteja em conformidade com as exigências do município.
Como funciona o processo de aprovação?
O processo de aprovação do projeto de casa na prefeitura geralmente envolve as seguintes etapas:
1. Entrega do projeto e documentos
Após reunir toda a documentação necessária, o projeto de casa é entregue no setor responsável pela fiscalização urbanística da prefeitura, que fará a análise da conformidade do projeto com as normas vigentes.
2. Análise técnica
Os técnicos da prefeitura irão analisar o projeto para garantir que ele esteja de acordo com as exigências do Código de Obras e outras regulamentações locais. O projeto será verificado quanto a aspectos como dimensões, posicionamento no terreno e segurança estrutural.
3. Aprovação ou solicitação de ajustes
Se o projeto estiver em conformidade com as normas, ele será aprovado, e você receberá o alvará de construção. No entanto, se houver algum erro ou inconsistência no projeto, a prefeitura poderá solicitar ajustes antes de conceder a aprovação.
4. Emissão do alvará de construção
Após a aprovação do projeto, a prefeitura emite o alvará de construção, que é o documento oficial que autoriza o início das obras. Com o alvará em mãos, você pode começar a construção, respeitando todas as condições estabelecidas no projeto aprovado.
E se o projeto for de uma planta pronta?
Se você comprou um projeto de casa pronto, ele já está, em sua maioria, elaborado de acordo com as normas e regulamentações que garantem sua viabilidade para aprovação na prefeitura. Porém, sempre é importante verificar as exigências locais, já que algumas cidades podem ter regras específicas que podem exigir ajustes no projeto, como a necessidade de adequações nos recuos ou a substituição de determinados materiais.
Para dar entrada na prefeitura com o projeto de sua casa, é importante garantir que ele esteja completo, em conformidade com as normas locais e acompanhado de todos os documentos exigidos. Ao seguir o processo corretamente, a aprovação do seu projeto será mais rápida e sem problemas, permitindo que você inicie sua construção com segurança e tranquilidade.

Veja projetos prontos e comece a planejar
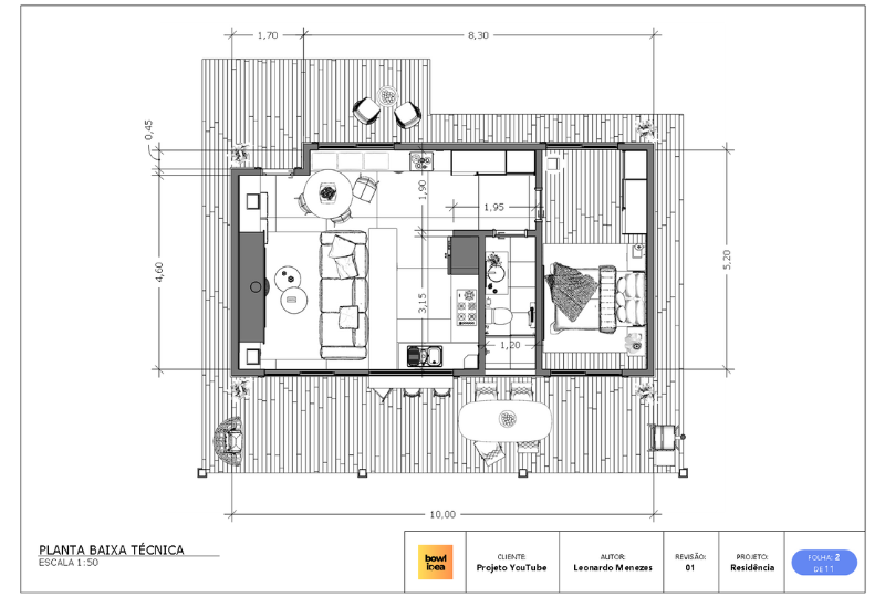
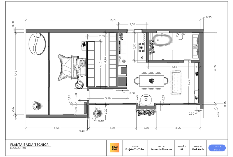
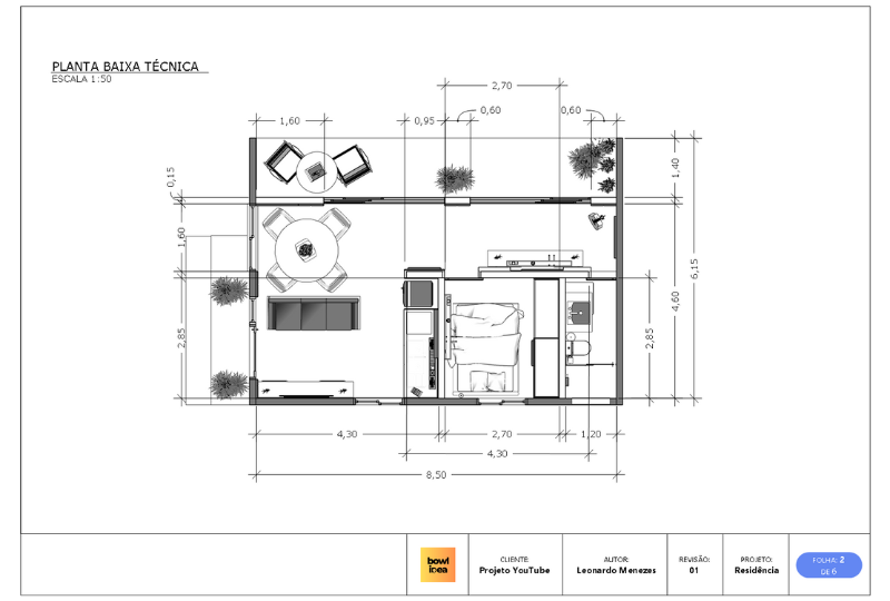
O que é uma planta baixa?
A planta baixa é um dos documentos mais importantes em qualquer projeto de construção, pois é a representação gráfica do layout interno de um imóvel. Ela fornece uma visão clara da distribuição dos espaços, das dimensões dos cômodos e de elementos fundamentais como portas, janelas e paredes. Ter uma planta baixa é essencial tanto para a construção quanto para a futura utilização do imóvel.
O que a planta baixa mostra?
A planta baixa é, basicamente, uma vista superior do imóvel, cortada horizontalmente para mostrar o interior da casa. Ela proporciona um mapeamento detalhado de como os ambientes serão distribuídos, permitindo que os profissionais e moradores compreendam a organização do espaço.
1. Distribuição dos ambientes
A planta baixa mostra como os diferentes cômodos da casa estão dispostos. Por exemplo, ela indica a localização da sala de estar, cozinha, banheiros, quartos, entre outros. Além disso, a planta baixa vai mostrar como os espaços se inter-relacionam, como a circulação entre os cômodos.
2. Dimensões e proporções
Cada cômodo na planta baixa é representado com suas dimensões exatas. Isso ajuda a visualizar o tamanho de cada ambiente, o que é essencial para garantir que a casa atenda às necessidades dos moradores. A planta baixa também indica largura e comprimento das paredes, permitindo que os profissionais da construção planejem com precisão.
3. Detalhes das aberturas
A planta baixa também inclui as aberturas da casa, como portas e janelas. Esses detalhes são importantes, pois ajudam a entender a circulação de pessoas e a iluminação natural nos cômodos. Além disso, as aberturas influenciam aspectos de ventilação e acessibilidade.
4. Posicionamento de instalações
A planta baixa também indica o posicionamento das instalações essenciais, como os pontos de água, energia elétrica e gás. Isso facilita o planejamento das obras e a execução de serviços como encanamento e eletricidade.
5. Paredes e divisões internas
A planta baixa também marca as paredes internas e divisórias, mostrando como cada cômodo será fechado ou integrado aos outros. É fundamental para o planejamento da construção das paredes e para a organização do espaço.
Qual a importância da planta baixa?
A planta baixa é crucial para diversas fases da construção e do uso do imóvel. Aqui estão algumas razões para entender sua importância:
1. Planejamento da construção
A planta baixa serve como o guia para toda a execução da obra. É a ferramenta básica que os profissionais da construção utilizam para determinar onde e como cada elemento será montado. Sem uma planta baixa, seria impossível planejar a obra de forma eficiente.
2. Facilidade na aprovação do projeto
Quando o projeto de uma casa é submetido à prefeitura ou a órgãos de fiscalização, a planta baixa é o documento principal que será analisado. Ela ajuda a garantir que a construção esteja em conformidade com as normas de zoneamento, segurança e funcionalidade. Portanto, a planta baixa é essencial para a aprovação do projeto.
3. Auxílio na decoração e remodelação
A planta baixa também facilita o planejamento de interiores e a decoração da casa. Ela oferece uma visão clara de como os móveis e objetos podem ser dispostos de forma funcional e estética. Isso também é útil para reformas, onde a planta baixa pode ser adaptada para ajustes nos espaços.
4. Orçamento e controle de custos
A planta baixa também ajuda no controle orçamentário. Com ela, é possível estimar a quantidade de materiais necessários, como tijolos, madeira e cimento, ajudando a planejar e controlar os custos da construção de forma mais eficiente.
Como a planta baixa é criada?
A planta baixa é elaborada por arquitetos ou engenheiros, com base nas necessidades do proprietário e nas exigências do terreno. Ela pode ser criada manualmente ou por meio de softwares especializados de desenho arquitetônico, como AutoCAD, Revit ou SketchUp.
O processo envolve o levantamento das dimensões do terreno e a análise das condições ambientais (como ventilação e iluminação natural), para garantir que o imóvel será confortável e eficiente. O arquiteto ou engenheiro também leva em conta as normas de construção e a legislação local ao elaborar a planta.
Considerações finais
A planta baixa é o ponto de partida para qualquer construção. Ela oferece uma visão clara e precisa de como será a distribuição dos ambientes e como o imóvel será construído. Para quem deseja construir ou reformar, a planta baixa é fundamental para garantir que o projeto seja executado com eficiência, segurança e funcionalidade.
Quais as informações essenciais de uma planta baixa?
Uma planta baixa é uma representação detalhada de como os ambientes de um imóvel serão distribuídos e como serão utilizadas as áreas internas e externas. Ela é fundamental para orientar a execução da obra e garantir que os espaços sejam projetados de forma funcional e adequada às necessidades dos moradores. Mas, afinal, o que deve constar em uma planta baixa para que ela seja completa e eficiente?
1. Dimensões e proporções dos cômodos
Uma das informações essenciais que devem constar em qualquer planta baixa são as dimensões de cada cômodo. Isso inclui o comprimento, a largura e a altura das paredes e divisórias internas. As proporções dos ambientes são importantes para que o espaço seja bem aproveitado e que a circulação de pessoas dentro da casa seja confortável.
Além disso, essas dimensões ajudam a planejar os móveis, como sofás, camas e mesas, garantindo que os ambientes não fiquem apertados ou desproporcionais.
2. Posição de portas e janelas
A planta baixa deve indicar com clareza a localização das portas e janelas em cada cômodo. Esse detalhe é crucial para garantir que a circulação seja fácil e que os ambientes recebam a iluminação natural adequada. Além disso, as portas e janelas influenciam a ventilação e o fluxo de pessoas dentro da casa.
É importante também considerar as aberturas em áreas específicas da casa, como a cozinha e o banheiro, para garantir que a casa seja prática e funcional.
3. Distribuição dos cômodos
A distribuição dos ambientes é uma das principais características de uma planta baixa. Isso inclui a forma como os cômodos estão organizados, como a integração de espaços (por exemplo, cozinha e sala de jantar) ou a separação de áreas privativas (quartos e banheiros) das áreas comuns (salas e cozinha). O layout deve ser planejado para que a casa seja funcional, aproveitando ao máximo o espaço disponível.
3.1 Setorização
Em algumas plantas baixas, a setorização é indicada por diferentes cores ou texturas, para mostrar claramente a funcionalidade de cada área (privada, social, técnica, etc.).
4. Paredes e divisórias internas
Outro ponto importante é a distribuição das paredes e divisórias internas. A planta baixa deve indicar a posição das paredes externas e internas, e como elas separaram os cômodos. Para garantir que a casa seja funcional, a planta deve evitar longos corredores ou divisões que atrapalhem a circulação eficiente.
Além disso, a planta deve identificar se as paredes serão de alvenaria ou de gesso, por exemplo, ou se haverá divisórias móveis em algum espaço, como no caso de um home office integrado à sala de estar.
5. Instalações elétricas, hidráulicas e de gás
Uma planta baixa detalhada também inclui informações sobre as instalações elétricas, hidráulicas e de gás. Ela deve indicar o posicionamento de interruptores, tomadas, luzeiros, pontos de água e caixas de gordura.
Esse detalhe é crucial para garantir que o projeto tenha funcionalidade e segurança, além de facilitar a execução do trabalho dos eletricistas e encanadores na obra.
5.1 Plano de instalação
Se possível, a planta deve incluir também um plano de instalação de redes de internet, telefonia e sistemas de segurança (como câmeras e alarmes), especialmente em casas mais modernas e tecnológicas.
6. Escadas e rampas (se aplicável)
Para projetos de casas com mais de um andar ou com acessos elevados, a planta baixa deve indicar a localização das escadas ou rampas. É importante que a escada tenha as dimensões adequadas e esteja em um local estratégico, que não interfira no fluxo de circulação e que ofereça segurança aos moradores.
7. Áreas externas (se aplicável)
Caso o projeto inclua áreas externas, como um jardim, piscina ou varanda, a planta baixa também deve mostrar essas áreas. A localização de muros, portões, caminhos e outras estruturas externas devem ser representadas para garantir a integração com o restante da construção.
8. Notas e referências adicionais
Por fim, a planta baixa deve incluir notas que explicam certos aspectos do projeto, como as materiais a serem usados, o tipo de acabamento e os detalhes construtivos que são importantes para a execução correta da obra. Essas informações ajudam a garantir que todos os profissionais envolvidos na construção compreendam as especificações do projeto.
Considerações finais
As informações essenciais de uma planta baixa são cruciais para garantir que o imóvel seja construído de forma eficiente, segura e funcional. Ela não apenas orienta a execução da obra, mas também é fundamental para que o proprietário consiga visualizar sua nova casa e planejar adequadamente a decoração e o uso do espaço. Ao garantir que todas essas informações estejam presentes, você estará no caminho certo para uma construção de sucesso.
O que é a planta baixa cotada?
A planta baixa cotada é uma variação detalhada da planta baixa tradicional, que inclui informações precisas sobre as dimensões de cada ambiente e os detalhes técnicos necessários para a execução da obra. Ao contrário da planta baixa simples, que oferece uma visão geral da disposição dos cômodos, a planta cotada é mais precisa e contém medidas exatas de cada parede, porta, janela e outros elementos do imóvel.
O que está incluído em uma planta baixa cotada?
Uma planta baixa cotada inclui todas as informações necessárias para a construção detalhada do imóvel. Ela não só mostra a disposição dos ambientes, mas também fornece as medidas exatas e os detalhes técnicos, permitindo que os profissionais da obra trabalhem com precisão. Os principais elementos incluem:
1. Medidas exatas dos cômodos
Cada ambiente da planta baixa cotada tem suas dimensões exatas indicadas em metros e centímetros. Isso é importante para garantir que o espaço será usado de maneira eficiente e que os móveis e outras instalações caibam adequadamente nos cômodos.
2. Posição exata das paredes
Na planta baixa cotada, as paredes internas e externas são representadas com as medidas exatas. Além disso, as espessuras das paredes também são indicadas, o que ajuda a definir os materiais a serem utilizados e a distribuição das instalações elétricas e hidráulicas.
3. Detalhes das aberturas (portas e janelas)
A planta baixa cotada mostra a localização exata das portas e janelas, bem como suas dimensões, permitindo que a obra seja realizada com precisão. Esse detalhe é importante para que os profissionais possam instalar as aberturas de acordo com as especificações.
4. Localização das instalações e pontos de infraestrutura
A planta cotada também pode incluir detalhes sobre as instalações de água, gás, eletricidade e esgoto, com a localização exata de todos os pontos de conexão e pontos de acesso. Isso facilita a execução dessas instalações e garante que sejam feitas corretamente.
5. Cortes e detalhes técnicos
Além das medidas e dos detalhes das paredes e aberturas, uma planta cotada pode incluir cortes transversais e longitudinais, que mostram as dimensões verticais e a altura dos ambientes. Esse detalhamento permite que os profissionais compreendam melhor como a obra será executada, especialmente em relação às estruturas do imóvel.
Qual a importância de uma planta baixa cotada?
A planta baixa cotada é essencial para evitar erros durante a execução da obra e garantir que o projeto seja seguido precisamente. Ao fornecer as medidas exatas, ela facilita o trabalho dos construtores, engenheiros e arquitetos, permitindo que eles planejem cada etapa da construção com base em dados concretos.
1. Precisão e exatidão na execução da obra
A principal vantagem de uma planta cotada é que ela permite uma execução precisa da obra. Ao indicar as medidas exatas, os profissionais podem calcular corretamente o consumo de materiais, como cimento, tijolos e madeira, e evitar desperdícios ou erros de construção.
2. Facilidade na instalação de sistemas
Com as dimensões precisas e a localização exata das instalações, fica muito mais fácil instalar os sistemas elétricos, hidráulicos e de gás. A planta cotada facilita o trabalho dos profissionais dessas áreas, garantindo que todos os pontos de energia e abastecimento sejam corretamente posicionados.
3. Planejamento de móveis e decoração
Além de facilitar a execução da obra, a planta baixa cotada também pode ser muito útil no planejamento de móveis e decoração. Como ela já indica as dimensões exatas de cada cômodo e da posição das aberturas, fica mais fácil determinar o tamanho dos móveis e como eles se encaixarão no espaço disponível.
Diferença entre planta baixa cotada e planta baixa simples
A principal diferença entre uma planta baixa cotada e uma planta baixa simples está no nível de detalhamento. Enquanto a planta baixa simples oferece uma visão geral da distribuição dos cômodos e das dimensões aproximadas, a planta cotada fornece as medidas exatas de cada parte da construção, incluindo a posição de portas, janelas e divisórias.
1. Planta baixa simples
- Apresenta as distribuições gerais dos cômodos.
- Não inclui medidas exatas de portas e janelas.
- É mais útil em fases iniciais do projeto, para visualizar a organização do espaço.
2. Planta baixa cotada
- Fornece medidas exatas e detalhamento técnico.
- Inclui informações sobre espessuras de paredes, instalações e cortes.
- É essencial para execução da obra e para instalações precisas.
Considerações finais
A planta baixa cotada é um documento fundamental para garantir a precisão e o sucesso de qualquer construção. Com ela, todos os detalhes técnicos da obra são claros, o que facilita a execução de cada etapa e garante que o projeto será seguido à risca. Seja para construir uma casa ou realizar uma reforma, a planta cotada é uma ferramenta essencial para evitar erros e otimizar o uso do espaço.
Em que posso utilizar a planta baixa? Quais as vantagens?
A planta baixa é um dos documentos mais importantes em qualquer projeto de construção ou reforma. Ela oferece uma visão detalhada de como os ambientes serão organizados, facilitando a execução da obra, o planejamento dos espaços e a escolha dos acabamentos. A seguir, vamos explorar como você pode utilizar a planta baixa em diferentes fases do projeto e quais as vantagens que ela oferece.
1. Planejamento e execução da obra
Uma das principais utilizações da planta baixa é no planejamento e execução da obra. Ela serve como o guia principal para os profissionais envolvidos na construção, como engenheiros, arquitetos, pedreiros e eletricistas, garantindo que o projeto seja executado com precisão.
1.1 Definir a distribuição dos ambientes
A planta baixa mostra como os diferentes cômodos se distribuem no imóvel, permitindo que você visualize como a circulação entre os espaços ocorrerá. Isso é fundamental para garantir que a distribuição seja funcional e que os ambientes atendam às suas necessidades.
1.2 Orientação para a obra
A planta baixa serve como um manual durante a obra, orientando os profissionais sobre onde construir paredes, instalar portas e janelas e posicionar instalações elétricas e hidráulicas. Sem a planta baixa, a execução da obra seria muito mais difícil e propensa a erros.
2. Decoração e mobiliário
A planta baixa também é uma ferramenta essencial para quem está planejando a decoração ou a mobilição da casa. Ela permite que você visualize com precisão onde cada móvel e objeto decorativo podem ser posicionados, garantindo que o espaço seja bem aproveitado e que a disposição dos móveis seja prática e confortável.
2.1 Planejamento do layout de móveis
Com a planta baixa em mãos, você pode planejar a distribuição dos móveis de forma eficiente, considerando as dimensões de cada ambiente. Isso é especialmente útil em espaços pequenos, onde cada metro quadrado deve ser bem aproveitado. Você pode, por exemplo, decidir a localização do sofá, da cama e da mesa de jantar, garantindo que todos os itens se encaixem sem sobrecarregar o ambiente.
2.2 Decoração e estética
A planta baixa também ajuda no planejamento da decoração, pois permite visualizar como cores, texturas e estilos de acabamento funcionarão no espaço. Além disso, ela ajuda a entender a distribuição da luz natural e a ventilação, elementos importantes para a criação de ambientes confortáveis e aconchegantes.
3. Aprovação do projeto e licenciamento
Uma planta baixa é uma exigência essencial para obter o alvará de construção e para garantir a aprovação do projeto junto à prefeitura. Os órgãos municipais exigem que o projeto tenha uma planta baixa para verificar se ele está em conformidade com as leis de zoneamento e com as normas de construção locais.
3.1 Análise de conformidade
A planta baixa será analisada para garantir que o projeto esteja de acordo com as exigências do Código de Obras da cidade, como recuos, altura máxima, área permeável, entre outros. Ela também é usada para verificar a segurança estrutural e a funcionalidade do imóvel.
3.2 Facilidade na aprovação
Projetos com plantas baixas claras e detalhadas têm maiores chances de serem aprovados rapidamente pela prefeitura, sem a necessidade de ajustes ou retrabalhos. Isso pode acelerar o início da obra e reduzir custos e atrasos.
4. Reformas e ajustes no imóvel
Além de ser essencial para a construção de um imóvel novo, a planta baixa também é útil em casos de reformas e modificações em uma casa já existente. Quando você deseja fazer mudanças nos cômodos, na distribuição do espaço ou nas instalações, a planta baixa permite visualizar as alterações de forma prática.
4.1 Planejamento de reformas
Com a planta baixa, você pode facilmente planejar uma reforma, pois ela ajuda a identificar áreas que podem ser modificadas sem comprometer a estrutura do imóvel. Por exemplo, você pode decidir remover uma parede para ampliar um cômodo ou ajustar a posição de portas e janelas.
4.2 Facilidade na contratação de profissionais
Ao apresentar a planta baixa para pedreiros e decoradores, você facilita a comunicação sobre o que precisa ser feito na reforma. Isso garante que os profissionais compreendam suas expectativas e possam realizar o trabalho de acordo com o projeto original.
5. Venda ou locação do imóvel
Se você está pensando em vender ou alugar sua casa, a planta baixa pode ser uma ferramenta valiosa para mostrar aos compradores ou inquilinos o potencial do imóvel. Ela permite que eles visualizem como os espaços serão usados e como a distribuição dos cômodos atende às suas necessidades.
5.1 Atração de compradores ou locatários
Com a planta baixa, os potenciais compradores ou locatários podem ter uma ideia clara de como será o layout da casa, facilitando a decisão de compra ou aluguel. Além disso, ela ajuda a valorizar o imóvel, pois demonstra que o projeto foi bem planejado e que o imóvel é funcional.
Considerações finais
A planta baixa é uma ferramenta essencial para diversas fases do projeto de construção e além. Ela não só facilita o planejamento da obra, mas também é fundamental para a decoração, aprovação junto à prefeitura, reformas e até na venda ou locação do imóvel. Ao utilizá-la de maneira estratégica, você garante que o imóvel será bem planejado, funcional e valorizado, oferecendo muitos benefícios para a construção e o uso do espaço.

Tenha acesso grátis a projetos de casas incríveis
Dá para construir somente com a planta baixa? Vale a pena?
A planta baixa é sem dúvida um dos documentos mais importantes em qualquer projeto de construção. No entanto, ela é apenas uma parte do conjunto necessário para a execução completa de uma obra. Muitas pessoas se perguntam se é possível construir apenas com a planta baixa e se isso é suficiente para garantir que o imóvel seja construído de forma segura, funcional e dentro das normas.
O que a planta baixa realmente oferece?
A planta baixa oferece uma visão geral da distribuição dos ambientes, das dimensões e do layout do imóvel. Ela mostra como os cômodos serão dispostos, as aberturas (portas e janelas) e a circulação entre os espaços. No entanto, a planta baixa sozinha não contém informações suficientes para garantir que a construção seja realizada com segurança e de acordo com as normas legais e técnicas.
O que falta na planta baixa?
Embora a planta baixa seja essencial, ela não fornece todos os detalhes necessários para a construção. Alguns aspectos importantes que não estão incluídos na planta baixa são:
1. Detalhamento estrutural
A planta baixa não inclui informações detalhadas sobre a estrutura da casa, como a fundação, as vigas e as colunas. Para que a obra seja segura, é necessário um projeto estrutural que defina como a carga será distribuída pela construção e os materiais a serem utilizados.
2. Instalações elétricas e hidráulicas
A planta baixa não oferece detalhes sobre a instalação elétrica, hidráulica e de gás. Para que esses sistemas sejam instalados corretamente, é necessário um projeto elétrico e hidráulico detalhado, que mostre os pontos de tomadas, interruptores, torneiras e tubulações.
3. Especificações de materiais
Embora a planta baixa possa indicar onde as paredes e os ambientes estarão localizados, ela não detalha os materiais específicos que devem ser utilizados na obra. É necessário um memorial descritivo que defina os materiais de acabamento, como piso, revestimentos e tintas, além de detalhes técnicos sobre a qualidade dos materiais.
4. Detalhamento de acabamentos e revestimentos
A planta baixa geralmente não especifica os acabamentos finais, como o tipo de piso (cerâmica, madeira, laminado), revestimento de paredes e forro. Esses detalhes são importantes para garantir que o projeto seja realizado conforme as preferências estéticas do proprietário e as normas de qualidade.
5. Análise de climatização e eficiência energética
A planta baixa não aborda questões relacionadas à eficiência energética, como a distribuição do calor e da luz natural. Para garantir um imóvel sustentável e econômico, é importante ter um projeto de climatização que leve em consideração a ventilação e o uso de energia.
O que é necessário além da planta baixa para uma construção completa?
Para uma construção ser segura, eficiente e legal, é necessário que o projeto contenha mais do que apenas a planta baixa. Além dessa planta, você precisará dos seguintes documentos e projetos:
1. Projeto estrutural
Um projeto estrutural é necessário para garantir que a casa seja segura e estável. Ele define como a construção será suportada pelas fundações e como as cargas serão distribuídas pela edificação.
2. Projeto elétrico e hidráulico
Esses projetos são essenciais para garantir que a instalação elétrica e hidráulica sejam feitas de forma segura e eficiente. O projeto elétrico vai definir a quantidade de pontos de energia, o tipo de disjuntores e o trilho de fiação. Já o projeto hidráulico indicará a distribuição das tubulações, a rede de esgoto e o fornecimento de água quente e fria.
3. Memorial descritivo
Um memorial descritivo detalha todos os materiais que serão utilizados na construção, bem como as técnicas construtivas. Ele ajuda a orçar o custo dos materiais e a garantir que a obra seja realizada conforme o especificado, sem surpresas ou alterações indesejadas.
4. Projeto de climatização e sustentabilidade
Esse tipo de projeto busca otimizar a eficiência energética do imóvel. Ele envolve a orientação solar, o uso de energias renováveis (como painéis solares), a ventilação natural e a captação de água da chuva.
5. Autorização da prefeitura
Por fim, é importante lembrar que para iniciar a construção, é necessário obter as licenças e autorizações da prefeitura. Isso envolve a aprovação de todos os projetos e o pagamento das taxas necessárias para garantir que a obra esteja em conformidade com as leis urbanísticas locais.
Vale a pena construir só com a planta baixa?
Embora seja possível iniciar a obra com a planta baixa, essa não é a melhor prática. A construção deve ser planejada de forma abrangente, com todos os detalhes técnicos e legais cuidadosamente avaliados e especificados. A planta baixa é fundamental, mas sem os projetos complementares, a obra corre o risco de sofrer com problemas de segurança, funcionalidade e incompatibilidade de instalações.
Portanto, não vale a pena construir apenas com a planta baixa. Para garantir uma obra bem-sucedida, é necessário que todos os aspectos sejam planejados, desde a estrutura até as instalações, e que o projeto esteja em conformidade com as normas legais e as necessidades pessoais do proprietário.
Considerações finais
Embora a planta baixa seja um documento essencial para a construção, ela não é suficiente para a execução completa da obra. Para garantir a segurança, qualidade e eficiência do imóvel, é imprescindível contar com projetos complementares, como o projeto estrutural, elétrico, hidráulico e o memorial descritivo. Somente com todos esses documentos em mãos é que você poderá dar início a uma construção de sucesso, sem imprevistos e com total conformidade legal.
Acesse a Biblioteca de Projetos
Perguntas Frequentes Sobre O que é projeto de casa? 5 itens que não podem faltar
O que é um projeto de casa?
É o conjunto de documentos técnicos e criativos que orienta toda a construção, incluindo planta baixa, cortes, fachadas, instalações e acabamentos.
Por que preciso de um projeto antes de construir?
Sem ele, há riscos de erros estruturais, desperdício de materiais, atrasos e gastos extras. O projeto garante segurança, funcionalidade e economia.
O projeto de casa inclui parte elétrica e hidráulica?
Sim. Um projeto completo contempla arquitetura, elétrica, hidráulica e até estrutura, garantindo integração entre os sistemas da construção.
Posso construir sem contratar um arquiteto?
Legalmente, construções acima de um certo porte exigem responsabilidade técnica. Além disso, o arquiteto evita erros e valoriza o imóvel com soluções inteligentes.
Quanto custa um projeto de casa?
O valor varia conforme o tamanho, complexidade e nível de personalização. Mas é um investimento que evita prejuízos maiores na obra.
Posso usar um projeto pronto da internet?
Projetos prontos podem servir de inspiração, mas devem ser adaptados por um profissional às normas locais, ao terreno e às necessidades da família.
Quanto tempo leva para fazer um projeto de casa?
Depende da complexidade, mas em média leva de 2 a 6 semanas. Um bom briefing e comunicação com o profissional agilizam o processo.
Como escolher o melhor tipo de projeto para meu terreno?
Antes de tudo, é essencial analisar o tamanho, formato e inclinação do terreno. Um arquiteto pode fazer um estudo de viabilidade e propor soluções que aproveitem melhor o espaço, a ventilação e a iluminação natural.
E se eu quiser fazer mudanças depois que o projeto estiver pronto?
Mudanças são possíveis, mas podem gerar custos extras e atrasos. Por isso, é importante alinhar todas as necessidades e desejos antes da finalização. Um bom profissional sempre deixa margem para ajustes inteligentes.
O projeto de casa influencia na valorização do imóvel?
Totalmente. Um projeto bem pensado aumenta o conforto, a eficiência energética e a estética — fatores que impactam diretamente no valor de mercado. Investir em um bom projeto é pensar no futuro do seu patrimônio.

Leonardo é engenheiro civil desde 2016 e criador do Bowl Idea, um projeto que une engenharia, criatividade e inspiração para transformar espaços em verdadeiros refúgios. Apaixonado por arquitetura funcional, minimalismo e elementos naturais, compartilha ideias acessíveis para quem busca praticidade com estilo. Atua também com soluções digitais e gestão de projetos, integrando inovação e experiência técnica em cada proposta.
Conheça nossos serviços para transformar sua casa




