Você já se perguntou por que alguns projetos de casas se destacam pela beleza e funcionalidade? Já pensou por que outros não conseguem criar um ambiente agradável e prático com arquitetura para casa?
Se você está planejando construir ou reformar sua casa, este guia é para você. Vamos explorar desde o planejamento inicial até a escolha de materiais e as etapas de construção. Assim, você terá um processo sem surpresas e um resultado que atende às suas expectativas.
Principais Considerações
- Entenda a importância do planejamento detalhado.
- Descubra como a escolha de materiais pode afetar sua construção.
- Saiba mais sobre as etapas fundamentais do design de interiores.
- Aprenda a evitar surpresas durante a construção.
- Garanta um resultado final que corresponda às suas expectativas.
O que é o projeto de casa e o que contém nele?
Um projeto de casa é um conjunto de planos e especificações para construir uma casa. Ele contém tudo o que é necessário para a construção, desde a parte técnica até a estética. Assim, todos os envolvidos sabem exatamente o que fazer.
O conteúdo do projeto arquitetônico abrange vários aspectos importantes. Isso inclui plantas baixas, elevações, cortes, detalhes de construção e especificações de materiais. Cada um desses elementos de um projeto de casa é crucial para a qualidade da obra.
As plantas baixas ajudam a visualizar os espaços internos. As elevações mostram como as fachadas externas vão ficar. Os cortes explicam a disposição vertical dos espaços. E os detalhes de construção dão instruções para a execução de certos elementos. Por fim, as especificações de materiais e acabamentos asseguram a qualidade dos itens usados.
Qual a importância do projeto de casa?
A importância do projeto de casa vai além da beleza. Ele é crucial para que seu novo lar atenda às suas necessidades. Um projeto bem feito evita erros e economiza tempo e dinheiro.
O planejamento de construção detalhado também ajuda na aprovação legal. Isso inclui a prefeitura, seguindo as normas e regulamentos. Assim, evita problemas como multas ou paralisação da obra.

Um projeto bem feito também torna tudo mais previsível. Você pode ver cada etapa da construção, desde a fundação até os acabamentos. Isso facilita muito o planejamento do orçamento e do cronograma.
| Benefício | Descrição |
|---|---|
| Otimização de recursos | Reduz desperdícios e aumenta a eficiência econômica. |
| Aprovação legal | Facilita a obtenção de permissões e licenças necessárias. |
| Previsibilidade | Ajuda a definir um orçamento e cronograma precisos. |
| Personalização | Permite que a casa seja adaptada às necessidades dos moradores. |
Assim, a importância do projeto de casa é grande. Ele garante segurança, economia e personalização. Cada detalhe será exatamente como você deseja.
Projetos de casa e a sua importância
Os projetos de residências são muito importantes. Eles definem a estrutura e o estilo da sua casa. Influenciam a distribuição dos espaços, a escolha de materiais e a localização das instalações.
Detalhar cada aspecto garante um resultado eficiente e harmonioso. Isso faz com que a construção seja bem-sucedida.

Compreender o impacto do projeto na construção ajuda a prever desafios. Também permite aproveitar melhor os recursos. Desde o planejamento até a execução, cada detalhe é crucial.
Os projetos de residências são mais que desenhos. São um guia detalhado para a obra. Eles orientam todas as etapas da construção.
Como são feitos os projetos de casa?
Os projetos de casa são feitos por arquitetos e engenheiros. Eles passam por várias etapas importantes. O processo de criação arquitetônica começa com uma conversa detalhada com o cliente.
Essa conversa ajuda a entender o que o cliente quer e precisa. É essencial para que o projeto atenda às suas expectativas.

Soluções Completas para Transformar Sua Casa com Estilo
Descubra como unir beleza, conforto e inteligência em cada metro da sua casa. Navegue pelos nossos projetos, inspire-se com ideias criativas e comece hoje mesmo a planejar o lar dos seus sonhos.

Depois, os profissionais criam plantas detalhadas. Essas plantas mostram cada parte do design da casa. Elas vão desde a disposição dos cômodos até os detalhes de construção.
Enquanto o processo de criação arquitetônica avança, fazem-se muitas revisões. Isso garante que o projeto seja perfeito para o cliente.
O processo de criação arquitetônica também inclui a escolha de materiais e acabamentos. Isso faz com que o projeto seja não só funcional, mas também bonito. A realização de projetos de casa termina quando o cliente aprova o projeto. Nesse momento, o projeto está pronto para ser construído.
Projeto arquitetônico básico para casa
Um projeto arquitetônico para casa é um conjunto de desenhos técnicos. Eles são essenciais na construção de uma residência. Incluem a disposição das paredes, janelas, portas e outros elementos básicos de arquitetura.
Esses desenhos são fundamentais para a orientação da obra. Eles garantem que todos os detalhes estejam organizados e sejam executados corretamente.

O projeto arquitetônico também contém informações detalhadas. Elas são sobre sistemas elétricos, hidráulicos e sanitários. Essas partes são cruciais para a funcionalidade do lar.
Com uma visão abrangente, o projeto cobre desde a iluminação até a distribuição dos pontos hidráulicos. Assim, assegura conforto e praticidade.
Os elementos básicos de arquitetura contemplados no projeto incluem a escolha de materiais e acabamentos. Eles garantem a durabilidade e a estética da construção. É um guia detalhado que, quando bem elaborado, proporciona segurança para a execução da obra. Além disso, atende às normas e regulamentações vigentes.
Qual é a diferença entre um projeto arquitetônico e uma planta baixa?
A diferença entre projeto arquitetônico e planta baixa é muito importante para quem vai construir uma casa. O projeto arquitetônico mostra tudo sobre o projeto, como elevações e seções. Já a planta baixa foca na vista superior dos espaços internos.

Receba Ideias Exclusivas Direto no Seu E-mail!
Transforme sua casa ou espaço com dicas criativas, projetos exclusivos e acesso antecipado às nossas novidades. Comece a planejar o refúgio perfeito agora mesmo.
Não fique de fora! Cadastre-se agora e tenha acesso exclusivo às melhores ideias e tendências.
Conecte-se com o Bowl Idea:
Siga-nos nas redes sociais para mais inspirações:
O projeto arquitetônico não só define onde vão ficar os cômodos. Ele também mostra o design das fachadas e a posição das portas e janelas. A planta baixa, por sua vez, mostra como os espaços dentro da casa estão organizados. Ela mostra as paredes, as aberturas e como se move entre os ambientes.

| Aspecto | Projeto Arquitetônico | Planta Baixa |
|---|---|---|
| Visão Geral | Inclui elevações, seções e cortes | Mostra a vista superior dos espaços internos |
| Detalhamento | Detalhes de fachadas, interiores e acabamentos | Posições de paredes, portas e janelas |
| Execução | Guia completo para construção | Foco na disposição espacial |
É muito importante entender a diferença entre projeto arquitetônico e planta baixa. Isso ajuda a garantir que o projeto de casa atenda a todas as necessidades. Assim, o planejamento é mais eficiente e sem surpresas durante a construção.
O que é projeto de casa pronto?
O projeto de casa pronto é uma forma rápida e econômica de construir um lar. São modelos pré-fabricados, criados por arquitetos profissionais. Eles oferecem layouts otimizados e funcionais.
Um projeto de casa pronto pode ser personalizado para atender às suas necessidades. Isso garante conveniência e adaptação perfeita.

Escolher modelos de casa pré-fabricados economiza tempo e dinheiro. Você não precisa começar do zero. Eles são testados e aprovados, garantindo qualidade e segurança.
A simplicidade e a rapidez na execução fazem do projeto de casa pronto uma escolha inteligente. É perfeito para quem está começando.
Investir em modelos de casa pré-fabricados é moderno e prático. É a maneira eficaz de realizar o sonho da casa própria.
O que está incluso em um projeto de casa pronto?
Um projeto de casa pronto traz várias facilidades para planejar e construir seu lar. Inclui:
- Plantas baixas detalhadas
- Elevações (vista frontal, traseira e laterais)
- Vistas de corte para melhor compreensão das seções internas
- Detalhes de construção que indicam métodos e materiais utilizados
- Lista de materiais necessários para a construção
Esses elementos são essenciais. Eles ajudam a seguir as normas locais e atender às necessidades dos clientes.

É importante também verificar se o projeto tem especificações extras. Coisas como o planejamento elétrico e hidráulico. Essas inclusões afetam o orçamento e o prazo da obra. Assim, o projeto cumprirá todas as exigências técnicas e legais.
Vantagens de investir em um projeto de casa pronto
Investir em um projeto de casa pronto traz muitas vantagens do projeto de casa pronto. Primeiro, economiza tempo e dinheiro. Esses são dois aspectos importantes em qualquer projeto de construção.
Uma grande vantagem é a economia em construção. Esses projetos já foram testados e melhorados. Assim, você compra com menos riscos de erros ou gastos inesperados. Isso ajuda a planejar melhor e diminui o estresse.

Um projeto de casa pronto também traz detalhes e acabamentos prontos. Isso economiza tempo que você gastaria pesquisando e planejando tudo por conta própria. Veja algumas vantagens de investir nesses projetos:
- Redução de custos com material e mão de obra
- Planejamento otimizado por profissionais experientes
- Menor tempo de construção
- Menor risco de erros estruturais
- Documentação completa e pronta para aprovação
Comprar um projeto de casa pronto traz uma economia em construção. Você sabe exatamente o que está comprando, os custos e os prazos. Isso torna a construção mais controlada e eficiente.
| Critério | Projeto de Casa Pronto | Projeto de Casa Personalizado |
|---|---|---|
| Tempo de Entrega | Imediato | Vários meses |
| Custo | Baixo | Alto |
| Risco de Erros | Baixo | Alto |
| Aprovação | Sim | Depende |
Qual a vantagem de comprar um projeto de casa?
Comprar um projeto de casa traz muitos benefícios. Um grande benefício de comprar um projeto de casa é ver o resultado final antes de começar. Com um projeto bem detalhado, você pode fazer mudanças antes da construção. Isso economiza muito dinheiro comparado a fazer mudanças depois.

Outro ponto importante é a rapidez no início da obra. Ao comprar um projeto pronto, você economiza tempo. Isso faz a construção começar mais rápido, diminuindo a ansiedade e os custos de espera.
Além disso, comprar projetos pode ser mais barato que contratar um arquiteto. Muitos projetos prontos são feitos por profissionais experientes. Eles oferecem soluções de design que são funcionais e bonitas, mas mais acessíveis.
Quanto custa uma planta de casa pronta?
O preço de uma planta de casa pronta varia muito. Isso depende do design e dos direitos de uso. Optar por uma planta pronta é mais barato que um projeto sob medida. Isso porque o preço é fixo, ajudando no orçamento.
O preço de uma planta pronta também é mais baixo. Isso porque muitas etapas já foram feitas. Assim, você tem uma solução rápida e eficiente.

| Tamanho da Casa | Complexidade do Projeto | Custo Médio |
|---|---|---|
| Até 100m² | Simples | R$ 2.000 – R$ 4.000 |
| 100m² – 200m² | Moderado | R$ 4.000 – R$ 8.000 |
| Acima de 200m² | Complexo | R$ 8.000 – R$ 15.000 |
Escolher uma planta pronta te faz economizar. Você economiza não só no preço, mas também em tempo e esforço. Assim, você pode começar a construção mais rápido e com menos gastos.
É possível comprar o projeto pronto + materiais e mão de obra para casa?
Sim, é possível comprar projeto completo. Isso inclui a planta, o projeto arquitetônico, os materiais e a mão de obra. Empresas especializadas em construção oferecem o pacote construção casa. Eles dão uma solução prática e econômica para quem quer facilidade.
Escolher um pacote completo traz muitos benefícios:
- Controle de orçamento: Evita surpresas desagradáveis com os custos, já que tudo é fechado previamente.
- Qualidade garantida: Empresas renomadas garantem a qualidade dos materiais e da execução do projeto.
- Agilidade: A coordenação entre a entrega dos materiais e a mão de obra otimiza o tempo de construção.

Veja uma tabela comparativa entre comprar itens separados e um pacote construção casa:
| Itens | Individualmente | Pacote Completo |
|---|---|---|
| Projeto Arquitetônico | Contratado separadamente | Incluído |
| Materiais | Comprados em diversas lojas | Incluso no pacote |
| Mão de Obra | Independente, sem garantia de qualidade | Garantida pela empresa |
| Tempo de Execução | Mais longo devido à coordenação | Optimizado |
Como vou saber se é seguro comprar um projeto de casa pronto?
Para saber se é seguro comprar um projeto de casa pronto, é essencial verificar a reputação do fornecedor. Pesquise as avaliações e depoimentos de outros clientes. Isso ajuda a confirmar se o fornecedor é confiável.
Além disso, compare os projetos oferecidos com as normas técnicas e leis locais. Isso garante que o projeto atenda às exigências.

Pedir referências diretas também é muito útil. Fale com pessoas que já compraram projetos do mesmo fornecedor. Eles podem dar uma opinião real sobre a experiência de compra e a qualidade do serviço.
Outro passo importante é analisar bem os documentos fornecidos. Verifique se todos os elementos essenciais estão lá. E se os projetos estão bem ilustrados e explicados.
É importante verificar se os projetos atendem aos requisitos técnicos. E se não há falhas que possam causar custos extras ou problemas futuros.
Posso usar o projeto de casa para dar entrada na prefeitura?
A aprovação de um projeto de casa é essencial antes de começar a construir. A maioria dos projetos precisa ser aprovada pela prefeitura local. Isso garante que o projeto segue as normas urbanísticas e as diretrizes da região.

Para entrar na prefeitura com seu projeto, você precisa de vários documentos. Você deve apresentar a planta baixa, o projeto arquitetônico completo e outros documentos técnicos. Esses documentos provam que o projeto é viável.
Quando você cumpre todos os requisitos e obtém a aprovação, você está perto de realizar seu sonho de ter uma casa. É importante seguir cada etapa com cuidado. E sempre procure ajuda de profissionais quando necessário.
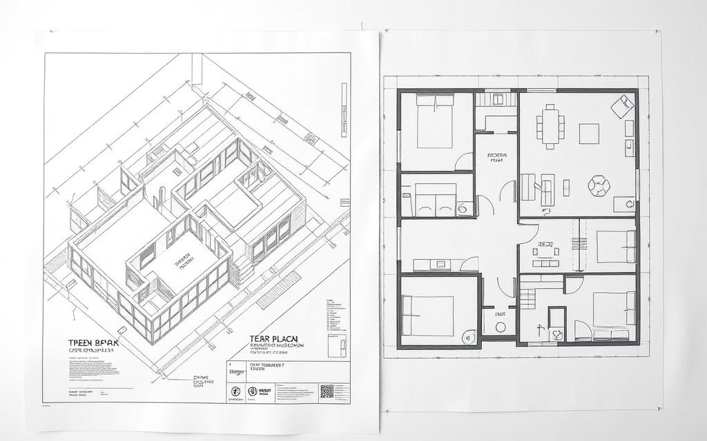
O que é uma planta baixa de uma casa?
A planta baixa de uma casa é um desenho técnico de casa. Ele mostra como os ambientes interiores estão dispostos de cima. Esse desenho detalha onde estão as paredes, janelas, portas e outros elementos importantes.
É muito útil para quem está planejando construir ou reformar. A planta baixa ajuda a visualizar o espaço e evitar erros na construção.

Para profissionais da construção, como arquitetos e engenheiros, a planta baixa é crucial. Ela permite entender como os espaços se conectam. Isso melhora a eficiência do projeto e evita retrabalhos.
Com uma planta baixa bem feita, você garante um desenho técnico de casa preciso. Isso resulta em um lar funcional e harmonioso.
Quais as informações essenciais de uma planta baixa de casa?
Quando olhamos uma planta baixa, vários elementos importantes chamam nossa atenção. Ela deve mostrar as medidas de cada quarto, onde estão as portas e janelas. Também deve mostrar claramente cada espaço da casa. Esses detalhes da planta baixa dão uma ideia clara da casa.

Uma planta baixa também mostra as instalações elétricas e hidráulicas. Isso é crucial para reformas e manutenção futuras. Esses detalhes da planta baixa ajudam a planejar melhor e evitar problemas na construção.
Para entender melhor, veja a tabela abaixo:
| Elemento | Descrição | Importância |
|---|---|---|
| Medidas detalhadas | Dimensões precisas de cada cômodo | Esclarece o espaço disponível |
| Portas e janelas | Localização exata e tamanhos | Facilita a ventilação e iluminação |
| Identificação dos cômodos | Nome e função de cada área | Ajuda na organização do layout |
| Instalações elétricas e hidráulicas | Disposição de tomadas, interruptores e encanamentos | Importante para instalações seguras e funcionais |
O que é a planta baixa cotada de casa?
Uma planta baixa cotada de casa é essencial para qualquer projeto arquitetônico. Ela fornece detalhes precisos e técnicos vitais para a construção. Nela, você acha medidas exatas, como distâncias entre paredes e tamanhos de aberturas.
As especificações técnicas em planta são cruciais. Elas garantem que todos os componentes do projeto se encaixem perfeitamente. Isso evita problemas durante a construção.
A planta baixa cotada também inclui referências detalhadas. Elas permitem que os construtores saibam exatamente onde e como colocar cada parte da casa. Isso facilita a construção e ajuda a estimar custos e planejar a logística do projeto.

| Elemento | Descrição |
|---|---|
| Distâncias entre Paredes | Mede o espaço entre as diferentes paredes da casa. |
| Tamanhos de Aberturas | Inclui detalhes sobre o tamanho das portas e janelas. |
| Altura dos Elementos | Define a altura de paredes, bancadas e outros componentes estruturais. |
Portanto, se você está planejando construir ou reformar, é essencial ter uma planta baixa cotada bem detalhada. Com todas as especificações técnicas em planta, seu projeto terá sucesso.
Em que posso utilizar a planta baixa de casa? Quais as vantagens?
A planta baixa é essencial para planejar espaços. Ela ajuda a organizar móveis e decoração. Assim, você pode ver como os cômodos vão ficar e usar melhor o espaço.
Um grande benefício é a comunicação entre arquitetos, engenheiros e clientes. A planta baixa é um documento que ajuda a entender o projeto. Isso permite fazer ajustes antes da construção.
Além disso, é crucial para aprovações legais e financiamentos. Muitos lugares precisam de uma planta baixa para dar aprovção.
Usar a planta baixa também evita retrabalhos e atrasos. Definir bem os espaços e especificações desde o começo evita mudanças caras. Para saber mais sobre as vantagens, veja esse artigo.
Perguntas Frequentes Sobre Guia de Arquitetura para Casa: Crie Seu Lar
O que é o projeto de casa e o que contém nele?
O projeto de casa é um documento que detalha a construção do imóvel. Ele inclui plantas baixas, cortes, elevações e especificações técnicas. Isso garante que cada etapa da construção seja feita com precisão.
Qual a importância do projeto de casa?
O projeto de casa é essencial para garantir a segurança, funcionalidade e estética da construção. Ele ajuda a evitar erros e desperdícios. Assim, a construção segue as normas e regulamentos locais.
Como são feitos os projetos de casa?
Arquitetos e engenheiros criam os projetos de casa. Eles fazem um estudo do terreno e das necessidades do cliente. Usam softwares para criar modelos 3D e plantas detalhadas.
Qual é a diferença entre um projeto arquitetônico e uma planta baixa?
O projeto arquitetônico detalha toda a construção. Já a planta baixa mostra a divisão interna dos cômodos no nível do chão. Ela é parte do projeto arquitetônico.
O que é projeto de casa pronto?
Um projeto de casa pronto é um projeto já completo e pronto para ser comprado. É uma opção prática para quem quer construir rapidamente. Isso economiza tempo e recursos.
O que está incluso em um projeto de casa pronto?
Vantagens de investir em um projeto de casa pronto?
Investir em um projeto de casa pronto economiza tempo e dinheiro. Oferece um design testado e aprovado. E facilita a adaptação ao terreno.
Qual a vantagem de comprar um projeto de casa?
Comprar um projeto de casa traz segurança. Investe em um design profissional e bem elaborado. Isso aumenta o valor do imóvel e garante uma construção eficiente.
Quanto custa uma planta de casa pronta?
O custo de uma planta de casa pronta varia. Isso depende da complexidade, tamanho e detalhamento do projeto. Geralmente é mais barato do que contratar um arquiteto para um projeto personalizado.
É possível comprar o projeto pronto + materiais e mão de obra para casa?
Sim, algumas empresas oferecem pacotes completos. Eles incluem o projeto arquitetônico, a compra de materiais e a contratação de mão de obra para a construção.
Como vou saber se é seguro comprar um projeto de casa pronto?
Para garantir a segurança, verifique as avaliações da empresa. Procure por recomendações. Certifique-se de que os projetos são assinados por profissionais habilitados no CAU.
Posso usar o projeto de casa para dar entrada na prefeitura?
Sim, os projetos de casa prontos seguem as normas técnicas. Eles podem ser usados para obter as aprovações necessárias na prefeitura.
O que é uma planta baixa de uma casa?
A planta baixa é um desenho técnico. Mostra a disposição e divisão dos cômodos em um determinado pavimento. É fundamental para o planejamento da construção.
Quais as informações essenciais de uma planta baixa de casa?
Uma planta baixa essencial inclui a localização das paredes, portas, janelas e escadas. Também mostra a destinação de cada cômodo. E inclui as medidas e proporções precisas dos espaços.
O que é a planta baixa cotada de casa?
A planta baixa cotada inclui todas as medidas e dimensões dos espaços internos e externos. Garante que cada detalhe da construção esteja de acordo com as especificações técnicas exigidas.
Em que posso utilizar a planta baixa de casa? Quais as vantagens?
A planta baixa é usada no planejamento, orçamento e execução da construção. Suas vantagens incluem a visualização clara da distribuição dos espaços. E garante uma execução precisa e eficiente da obra.

Leonardo é engenheiro civil desde 2016 e criador do Bowl Idea, um projeto que une engenharia, criatividade e inspiração para transformar espaços em verdadeiros refúgios. Apaixonado por arquitetura funcional, minimalismo e elementos naturais, compartilha ideias acessíveis para quem busca praticidade com estilo. Atua também com soluções digitais e gestão de projetos, integrando inovação e experiência técnica em cada proposta.
Conheça nossos serviços para transformar sua casa




